top of page

T&Y fAM Bat-YAM

T&Y fAM Bat-YAM

T&Y fAM Bat-YAM

T&Y fAM Bat-YAM

T&Y fAM Bat-YAM

T&Y fAM Bat-YAM

T&Y fAM Bat-YAM

T&Y fAM Bat-YAM

A&A Fam House
Petah Tikva
דירת 5 חדרים
עיר: פתח תקווה
דיירים: זוג, בעל ואישה בשנות החמישים לחייהם וילדה בוגרת בזוגיות שחייה בדירה
הדירה, דירת מגורים בבניין רב קומות בשכונת אם המושבות
הדירה לפני תחילת השיפוץ הייתה חשוכה, עמוסה ולמראית עין נראתה קטנה
המטבח היה בקצה השני של הדירה והחלל מגורים היה צר וקטן
חדר רחצה של ההורים היה קטנטן ולא מפנק בעליל
האתגר שהוצב לפניי הזוג במקור הגיעו מאשדוד, מדירת פנטהאוס מרווחת והחשש העיקרי שלהם היה הגודל הקטנטן למראית עין של הדירה שהרגישו שהם נאלצים לעבור אליה
המטרה שהצבתי לעצמי להפוך את הדירה לחלל מאוורר, גדול, עם מקומות אחסון רבים ונקי ככל האפשר
בפועל אחרי הביקור הראשון שלי בדירה לצורך מדידתה הבנתי שהדבר הנכון יהיה ללא צל של ספק לוותר על חדר שינה 'לפתוח' אותה לטובת חדר מגורים ולהעתיק אליה את המטבח
וכך הסרנו את הקירות המיותרים, הזזנו בהצלחה מרובה את המטבח למקומה החדש והמכובד
הגדלנו את חדר הרחצה של ההורים שיהיה מפנק כמו בבית מלון, תכננו לכל הדירה נגרות בהתאמה אישית כולל מקום אחסון רב ליין ונעליים :) יצרנו משרד נוח ומאובזר, ביטלנו חדר שירות שחסם את המרחב והאור שכה חשוב לדעתי, בחרנו חומרים בהירים שיתנו תחושת מרחב וניקיון וכך
הפכנו משפחה מיוחדת ויקרה מאוד למאושרים בביתם החדש
עיר: פתח תקווה
דיירים: זוג, בעל ואישה בשנות החמישים לחייהם וילדה בוגרת בזוגיות שחייה בדירה
הדירה, דירת מגורים בבניין רב קומות בשכונת אם המושבות
הדירה לפני תחילת השיפוץ הייתה חשוכה, עמוסה ולמראית עין נראתה קטנה
המטבח היה בקצה השני של הדירה והחלל מגורים היה צר וקטן
חדר רחצה של ההורים היה קטנטן ולא מפנק בעליל
האתגר שהוצב לפניי הזוג במקור הגיעו מאשדוד, מדירת פנטהאוס מרווחת והחשש העיקרי שלהם היה הגודל הקטנטן למראית עין של הדירה שהרגישו שהם נאלצים לעבור אליה
המטרה שהצבתי לעצמי להפוך את הדירה לחלל מאוורר, גדול, עם מקומות אחסון רבים ונקי ככל האפשר
בפועל אחרי הביקור הראשון שלי בדירה לצורך מדידתה הבנתי שהדבר הנכון יהיה ללא צל של ספק לוותר על חדר שינה 'לפתוח' אותה לטובת חדר מגורים ולהעתיק אליה את המטבח
וכך הסרנו את הקירות המיותרים, הזזנו בהצלחה מרובה את המטבח למקומה החדש והמכובד
הגדלנו את חדר הרחצה של ההורים שיהיה מפנק כמו בבית מלון, תכננו לכל הדירה נגרות בהתאמה אישית כולל מקום אחסון רב ליין ונעליים :) יצרנו משרד נוח ומאובזר, ביטלנו חדר שירות שחסם את המרחב והאור שכה חשוב לדעתי, בחרנו חומרים בהירים שיתנו תחושת מרחב וניקיון וכך
הפכנו משפחה מיוחדת ויקרה מאוד למאושרים בביתם החדש

Master bedroom








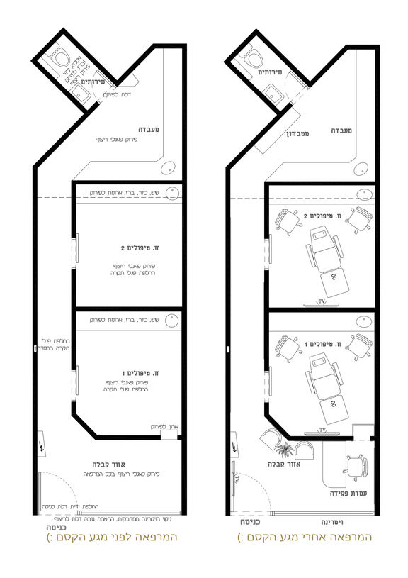
MCH Dental Clinic Holon
MCH מרפאת השיניים
עיר: חולון
שטח: כ 120 מ"ר
מרפאת השיניים רוצ'מן-חסלוביצר הוקמה בשנת 1987 על ידי ד"ר דיאנה רוצ'מן וד"ר מרכוס חסלוביצר - מומחים ברפואת שיניים, ובעלי מוניטין רב שנים בתחום בריאות הפה והשיניים. זוג רופאים ותיק ומבוקש בעיר חולון
לאחרונה עברה מרפאת השיניים לכתובתה החדשה בעיר והזמינה אותי (כשאני מתרגשת עד מאוד מהמעמד) לתכנן להם את מעונם החדש
לידיי קיבלתי מבנה שהקבלן רק סיים לבנותו ואני עמדתי מול מעטפת קירות עירומה ומול אתגרים רבים
אחד האתגרים היה התהייה איך ליצור תכנון שיתאים להרגלים של זוג הרופאים הנהדר שרגיל למרפאה ששירתה אותם נאמנה מעל 30 שנה ועדיין ליצור משהו חדשני עם תחושה של בית
וכמובן היו האתגרים הטכניים של תכנון חדרי טיפולים, מערכות אינסטלציה, חשמל, מיזוג אוויר המותאמים למתקן רפואי, מערכות סטריליזציה, קירות במילוי יחודי נגד קרינה, אזור אחסון של ארכיון, אזור מנוחה לצוות, תכנון תאורה פונקציונית ודקורטיבית, הנגשה של המרפאה, וראייה עיצובית חדשנית למרפאה שהיא מוסד של ממש בעיר
בפועל חודשים ארוכים עמלתי על תכנון של כל התוכניות השונות ועמדתי מול הגורמים הרשמיים בכדי לוודא תקינות התוכניות. תכננתי לכל החללים נגרויות בהתאמה ארגונומטרית אישית ותוך חודשים הוצאנו לפועל את כל התכנון הנרחב והמרגש המוצג בפניכם
הקו העיצובי שכיוונתי אליו היה לשדר ניקיון ומרחב פתוח ככל האפשר, אך מנגד רציתי ליצור תחושת חמימות מרגיעה ומאופקת שתשדר את אופי המקצועי, החם והמוקפד של המרפאה ושל הצוות המקסים שפועל בה. בחרתי להשתמש בעץ כדי לשדר חמימות וגוונים של כחול, זהב, וורוד עדין שחוזרים על עצמם לאורך כל חללי המרפאה. את השירותים ואת גרם המדרגות במרפאה חיפיתי באלמנט של עץ עם חריצי הצצה שהוא אלמנט מאוד מרכזי שחוזר על עצמו גם בחדרי הטיפולים המאפשרים חדירת אור טבעי לאזור ההמתנה. בכדי להשלים את הקו העיצובי עיצבתי משאריות החומרים קישוט קיר בכניסה לחלל ההמתנה
עיר: חולון
שטח: כ 120 מ"ר
מרפאת השיניים רוצ'מן-חסלוביצר הוקמה בשנת 1987 על ידי ד"ר דיאנה רוצ'מן וד"ר מרכוס חסלוביצר - מומחים ברפואת שיניים, ובעלי מוניטין רב שנים בתחום בריאות הפה והשיניים. זוג רופאים ותיק ומבוקש בעיר חולון
לאחרונה עברה מרפאת השיניים לכתובתה החדשה בעיר והזמינה אותי (כשאני מתרגשת עד מאוד מהמעמד) לתכנן להם את מעונם החדש
לידיי קיבלתי מבנה שהקבלן רק סיים לבנותו ואני עמדתי מול מעטפת קירות עירומה ומול אתגרים רבים
אחד האתגרים היה התהייה איך ליצור תכנון שיתאים להרגלים של זוג הרופאים הנהדר שרגיל למרפאה ששירתה אותם נאמנה מעל 30 שנה ועדיין ליצור משהו חדשני עם תחושה של בית
וכמובן היו האתגרים הטכניים של תכנון חדרי טיפולים, מערכות אינסטלציה, חשמל, מיזוג אוויר המותאמים למתקן רפואי, מערכות סטריליזציה, קירות במילוי יחודי נגד קרינה, אזור אחסון של ארכיון, אזור מנוחה לצוות, תכנון תאורה פונקציונית ודקורטיבית, הנגשה של המרפאה, וראייה עיצובית חדשנית למרפאה שהיא מוסד של ממש בעיר
בפועל חודשים ארוכים עמלתי על תכנון של כל התוכניות השונות ועמדתי מול הגורמים הרשמיים בכדי לוודא תקינות התוכניות. תכננתי לכל החללים נגרויות בהתאמה ארגונומטרית אישית ותוך חודשים הוצאנו לפועל את כל התכנון הנרחב והמרגש המוצג בפניכם
הקו העיצובי שכיוונתי אליו היה לשדר ניקיון ומרחב פתוח ככל האפשר, אך מנגד רציתי ליצור תחושת חמימות מרגיעה ומאופקת שתשדר את אופי המקצועי, החם והמוקפד של המרפאה ושל הצוות המקסים שפועל בה. בחרתי להשתמש בעץ כדי לשדר חמימות וגוונים של כחול, זהב, וורוד עדין שחוזרים על עצמם לאורך כל חללי המרפאה. את השירותים ואת גרם המדרגות במרפאה חיפיתי באלמנט של עץ עם חריצי הצצה שהוא אלמנט מאוד מרכזי שחוזר על עצמו גם בחדרי הטיפולים המאפשרים חדירת אור טבעי לאזור ההמתנה. בכדי להשלים את הקו העיצובי עיצבתי משאריות החומרים קישוט קיר בכניסה לחלל ההמתנה

MCH מרפאת השיניים
עיר: חולון
שטח: כ 120 מ"ר
מרפאת השיניים רוצ'מן-חסלוביצר הוקמה בשנת 1987 על ידי ד"ר דיאנה רוצ'מן וד"ר מרכוס חסלוביצר - מומחים ברפואת שיניים, ובעלי מוניטין רב שנים בתחום בריאות הפה והשיניים. זוג רופאים ותיק ומבוקש בעיר חולון
לאחרונה עברה מרפאת השיניים לכתובתה החדשה בעיר והזמינה אותי (כשאני מתרגשת עד מאוד מהמעמד) לתכנן להם את מעונם החדש
לידיי קיבלתי מבנה שהקבלן רק סיים לבנותו ואני עמדתי מול מעטפת קירות עירומה ומול אתגרים רבים
אחד האתגרים היה התהייה איך ליצור תכנון שיתאים להרגלים של זוג הרופאים הנהדר שרגיל למרפאה ששירתה אותם נאמנה מעל 30 שנה ועדיין ליצור משהו חדשני עם תחושה של בית
וכמובן היו האתגרים הטכניים של תכנון חדרי טיפולים, מערכות אינסטלציה, חשמל, מיזוג אוויר המותאמים למתקן רפואי, מערכות סטריליזציה, קירות במילוי יחודי נגד קרינה, אזור אחסון של ארכיון, אזור מנוחה לצוות, תכנון תאורה פונקציונית ודקורטיבית, הנגשה של המרפאה, וראייה עיצובית חדשנית למרפאה שהיא מוסד של ממש בעיר
בפועל חודשים ארוכים עמלתי על תכנון של כל התוכניות השונות ועמדתי מול הגורמים הרשמיים בכדי לוודא תקינות התוכניות. תכננתי לכל החללים נגרויות בהתאמה ארגונומטרית אישית ותוך חודשים הוצאנו לפועל את כל התכנון הנרחב והמרגש המוצג בפניכם
הקו העיצובי שכיוונתי אליו היה לשדר ניקיון ומרחב פתוח ככל האפשר, אך מנגד רציתי ליצור תחושת חמימות מרגיעה ומאופקת שתשדר את אופי המקצועי, החם והמוקפד של המרפאה ושל הצוות המקסים שפועל בה. בחרתי להשתמש בעץ כדי לשדר חמימות וגוונים של כחול, זהב, וורוד עדין שחוזרים על עצמם לאורך כל חללי המרפאה. את השירותים ואת גרם המדרגות במרפאה חיפיתי באלמנט של עץ עם חריצי הצצה שהוא אלמנט מאוד מרכזי שחוזר על עצמו גם בחדרי הטיפולים המאפשרים חדירת אור טבעי לאזור ההמתנה. בכדי להשלים את הקו העיצובי עיצבתי משאריות החומרים קישוט קיר בכניסה לחלל ההמתנה
עיר: חולון
שטח: כ 120 מ"ר
מרפאת השיניים רוצ'מן-חסלוביצר הוקמה בשנת 1987 על ידי ד"ר דיאנה רוצ'מן וד"ר מרכוס חסלוביצר - מומחים ברפואת שיניים, ובעלי מוניטין רב שנים בתחום בריאות הפה והשיניים. זוג רופאים ותיק ומבוקש בעיר חולון
לאחרונה עברה מרפאת השיניים לכתובתה החדשה בעיר והזמינה אותי (כשאני מתרגשת עד מאוד מהמעמד) לתכנן להם את מעונם החדש
לידיי קיבלתי מבנה שהקבלן רק סיים לבנותו ואני עמדתי מול מעטפת קירות עירומה ומול אתגרים רבים
אחד האתגרים היה התהייה איך ליצור תכנון שיתאים להרגלים של זוג הרופאים הנהדר שרגיל למרפאה ששירתה אותם נאמנה מעל 30 שנה ועדיין ליצור משהו חדשני עם תחושה של בית
וכמובן היו האתגרים הטכניים של תכנון חדרי טיפולים, מערכות אינסטלציה, חשמל, מיזוג אוויר המותאמים למתקן רפואי, מערכות סטריליזציה, קירות במילוי יחודי נגד קרינה, אזור אחסון של ארכיון, אזור מנוחה לצוות, תכנון תאורה פונקציונית ודקורטיבית, הנגשה של המרפאה, וראייה עיצובית חדשנית למרפאה שהיא מוסד של ממש בעיר
בפועל חודשים ארוכים עמלתי על תכנון של כל התוכניות השונות ועמדתי מול הגורמים הרשמיים בכדי לוודא תקינות התוכניות. תכננתי לכל החללים נגרויות בהתאמה ארגונומטרית אישית ותוך חודשים הוצאנו לפועל את כל התכנון הנרחב והמרגש המוצג בפניכם
הקו העיצובי שכיוונתי אליו היה לשדר ניקיון ומרחב פתוח ככל האפשר, אך מנגד רציתי ליצור תחושת חמימות מרגיעה ומאופקת שתשדר את אופי המקצועי, החם והמוקפד של המרפאה ושל הצוות המקסים שפועל בה. בחרתי להשתמש בעץ כדי לשדר חמימות וגוונים של כחול, זהב, וורוד עדין שחוזרים על עצמם לאורך כל חללי המרפאה. את השירותים ואת גרם המדרגות במרפאה חיפיתי באלמנט של עץ עם חריצי הצצה שהוא אלמנט מאוד מרכזי שחוזר על עצמו גם בחדרי הטיפולים המאפשרים חדירת אור טבעי לאזור ההמתנה. בכדי להשלים את הקו העיצובי עיצבתי משאריות החומרים קישוט קיר בכניסה לחלל ההמתנה


MCH מרפאת השיניים
עיר: חולון
שטח: כ 120 מ"ר
מרפאת השיניים רוצ'מן-חסלוביצר הוקמה בשנת 1987 על ידי ד"ר דיאנה רוצ'מן וד"ר מרכוס חסלוביצר - מומחים ברפואת שיניים, ובעלי מוניטין רב שנים בתחום בריאות הפה והשיניים. זוג רופאים ותיק ומבוקש בעיר חולון
לאחרונה עברה מרפאת השיניים לכתובתה החדשה בעיר והזמינה אותי (כשאני מתרגשת עד מאוד מהמעמד) לתכנן להם את מעונם החדש
לידיי קיבלתי מבנה שהקבלן רק סיים לבנותו ואני עמדתי מול מעטפת קירות עירומה ומול אתגרים רבים
אחד האתגרים היה התהייה איך ליצור תכנון שיתאים להרגלים של זוג הרופאים הנהדר שרגיל למרפאה ששירתה אותם נאמנה מעל 30 שנה ועדיין ליצור משהו חדשני עם תחושה של בית
וכמובן היו האתגרים הטכניים של תכנון חדרי טיפולים, מערכות אינסטלציה, חשמל, מיזוג אוויר המותאמים למתקן רפואי, מערכות סטריליזציה, קירות במילוי יחודי נגד קרינה, אזור אחסון של ארכיון, אזור מנוחה לצוות, תכנון תאורה פונקציונית ודקורטיבית, הנגשה של המרפאה, וראייה עיצובית חדשנית למרפאה שהיא מוסד של ממש בעיר
בפועל חודשים ארוכים עמלתי על תכנון של כל התוכניות השונות ועמדתי מול הגורמים הרשמיים בכדי לוודא תקינות התוכניות. תכננתי לכל החללים נגרויות בהתאמה ארגונומטרית אישית ותוך חודשים הוצאנו לפועל את כל התכנון הנרחב והמרגש המוצג בפניכם
הקו העיצובי שכיוונתי אליו היה לשדר ניקיון ומרחב פתוח ככל האפשר, אך מנגד רציתי ליצור תחושת חמימות מרגיעה ומאופקת שתשדר את אופי המקצועי, החם והמוקפד של המרפאה ושל הצוות המקסים שפועל בה. בחרתי להשתמש בעץ כדי לשדר חמימות וגוונים של כחול, זהב, וורוד עדין שחוזרים על עצמם לאורך כל חללי המרפאה. את השירותים ואת גרם המדרגות במרפאה חיפיתי באלמנט של עץ עם חריצי הצצה שהוא אלמנט מאוד מרכזי שחוזר על עצמו גם בחדרי הטיפולים המאפשרים חדירת אור טבעי לאזור ההמתנה. בכדי להשלים את הקו העיצובי עיצבתי משאריות החומרים קישוט קיר בכניסה לחלל ההמתנה
עיר: חולון
שטח: כ 120 מ"ר
מרפאת השיניים רוצ'מן-חסלוביצר הוקמה בשנת 1987 על ידי ד"ר דיאנה רוצ'מן וד"ר מרכוס חסלוביצר - מומחים ברפואת שיניים, ובעלי מוניטין רב שנים בתחום בריאות הפה והשיניים. זוג רופאים ותיק ומבוקש בעיר חולון
לאחרונה עברה מרפאת השיניים לכתובתה החדשה בעיר והזמינה אותי (כשאני מתרגשת עד מאוד מהמעמד) לתכנן להם את מעונם החדש
לידיי קיבלתי מבנה שהקבלן רק סיים לבנותו ואני עמדתי מול מעטפת קירות עירומה ומול אתגרים רבים
אחד האתגרים היה התהייה איך ליצור תכנון שיתאים להרגלים של זוג הרופאים הנהדר שרגיל למרפאה ששירתה אותם נאמנה מעל 30 שנה ועדיין ליצור משהו חדשני עם תחושה של בית
וכמובן היו האתגרים הטכניים של תכנון חדרי טיפולים, מערכות אינסטלציה, חשמל, מיזוג אוויר המותאמים למתקן רפואי, מערכות סטריליזציה, קירות במילוי יחודי נגד קרינה, אזור אחסון של ארכיון, אזור מנוחה לצוות, תכנון תאורה פונקציונית ודקורטיבית, הנגשה של המרפאה, וראייה עיצובית חדשנית למרפאה שהיא מוסד של ממש בעיר
בפועל חודשים ארוכים עמלתי על תכנון של כל התוכניות השונות ועמדתי מול הגורמים הרשמיים בכדי לוודא תקינות התוכניות. תכננתי לכל החללים נגרויות בהתאמה ארגונומטרית אישית ותוך חודשים הוצאנו לפועל את כל התכנון הנרחב והמרגש המוצג בפניכם
הקו העיצובי שכיוונתי אליו היה לשדר ניקיון ומרחב פתוח ככל האפשר, אך מנגד רציתי ליצור תחושת חמימות מרגיעה ומאופקת שתשדר את אופי המקצועי, החם והמוקפד של המרפאה ושל הצוות המקסים שפועל בה. בחרתי להשתמש בעץ כדי לשדר חמימות וגוונים של כחול, זהב, וורוד עדין שחוזרים על עצמם לאורך כל חללי המרפאה. את השירותים ואת גרם המדרגות במרפאה חיפיתי באלמנט של עץ עם חריצי הצצה שהוא אלמנט מאוד מרכזי שחוזר על עצמו גם בחדרי הטיפולים המאפשרים חדירת אור טבעי לאזור ההמתנה. בכדי להשלים את הקו העיצובי עיצבתי משאריות החומרים קישוט קיר בכניסה לחלל ההמתנה

MCH מרפאת השיניים
עיר: חולון
שטח: כ 120 מ"ר
מרפאת השיניים רוצ'מן-חסלוביצר הוקמה בשנת 1987 על ידי ד"ר דיאנה רוצ'מן וד"ר מרכוס חסלוביצר - מומחים ברפואת שיניים, ובעלי מוניטין רב שנים בתחום בריאות הפה והשיניים. זוג רופאים ותיק ומבוקש בעיר חולון
לאחרונה עברה מרפאת השיניים לכתובתה החדשה בעיר והזמינה אותי (כשאני מתרגשת עד מאוד מהמעמד) לתכנן להם את מעונם החדש
לידיי קיבלתי מבנה שהקבלן רק סיים לבנותו ואני עמדתי מול מעטפת קירות עירומה ומול אתגרים רבים
אחד האתגרים היה התהייה איך ליצור תכנון שיתאים להרגלים של זוג הרופאים הנהדר שרגיל למרפאה ששירתה אותם נאמנה מעל 30 שנה ועדיין ליצור משהו חדשני עם תחושה של בית
וכמובן היו האתגרים הטכניים של תכנון חדרי טיפולים, מערכות אינסטלציה, חשמל, מיזוג אוויר המותאמים למתקן רפואי, מערכות סטריליזציה, קירות במילוי יחודי נגד קרינה, אזור אחסון של ארכיון, אזור מנוחה לצוות, תכנון תאורה פונקציונית ודקורטיבית, הנגשה של המרפאה, וראייה עיצובית חדשנית למרפאה שהיא מוסד של ממש בעיר
בפועל חודשים ארוכים עמלתי על תכנון של כל התוכניות השונות ועמדתי מול הגורמים הרשמיים בכדי לוודא תקינות התוכניות. תכננתי לכל החללים נגרויות בהתאמה ארגונומטרית אישית ותוך חודשים הוצאנו לפועל את כל התכנון הנרחב והמרגש המוצג בפניכם
הקו העיצובי שכיוונתי אליו היה לשדר ניקיון ומרחב פתוח ככל האפשר, אך מנגד רציתי ליצור תחושת חמימות מרגיעה ומאופקת שתשדר את אופי המקצועי, החם והמוקפד של המרפאה ושל הצוות המקסים שפועל בה. בחרתי להשתמש בעץ כדי לשדר חמימות וגוונים של כחול, זהב, וורוד עדין שחוזרים על עצמם לאורך כל חללי המרפאה. את השירותים ואת גרם המדרגות במרפאה חיפיתי באלמנט של עץ עם חריצי הצצה שהוא אלמנט מאוד מרכזי שחוזר על עצמו גם בחדרי הטיפולים המאפשרים חדירת אור טבעי לאזור ההמתנה. בכדי להשלים את הקו העיצובי עיצבתי משאריות החומרים קישוט קיר בכניסה לחלל ההמתנה
עיר: חולון
שטח: כ 120 מ"ר
מרפאת השיניים רוצ'מן-חסלוביצר הוקמה בשנת 1987 על ידי ד"ר דיאנה רוצ'מן וד"ר מרכוס חסלוביצר - מומחים ברפואת שיניים, ובעלי מוניטין רב שנים בתחום בריאות הפה והשיניים. זוג רופאים ותיק ומבוקש בעיר חולון
לאחרונה עברה מרפאת השיניים לכתובתה החדשה בעיר והזמינה אותי (כשאני מתרגשת עד מאוד מהמעמד) לתכנן להם את מעונם החדש
לידיי קיבלתי מבנה שהקבלן רק סיים לבנותו ואני עמדתי מול מעטפת קירות עירומה ומול אתגרים רבים
אחד האתגרים היה התהייה איך ליצור תכנון שיתאים להרגלים של זוג הרופאים הנהדר שרגיל למרפאה ששירתה אותם נאמנה מעל 30 שנה ועדיין ליצור משהו חדשני עם תחושה של בית
וכמובן היו האתגרים הטכניים של תכנון חדרי טיפולים, מערכות אינסטלציה, חשמל, מיזוג אוויר המותאמים למתקן רפואי, מערכות סטריליזציה, קירות במילוי יחודי נגד קרינה, אזור אחסון של ארכיון, אזור מנוחה לצוות, תכנון תאורה פונקציונית ודקורטיבית, הנגשה של המרפאה, וראייה עיצובית חדשנית למרפאה שהיא מוסד של ממש בעיר
בפועל חודשים ארוכים עמלתי על תכנון של כל התוכניות השונות ועמדתי מול הגורמים הרשמיים בכדי לוודא תקינות התוכניות. תכננתי לכל החללים נגרויות בהתאמה ארגונומטרית אישית ותוך חודשים הוצאנו לפועל את כל התכנון הנרחב והמרגש המוצג בפניכם
הקו העיצובי שכיוונתי אליו היה לשדר ניקיון ומרחב פתוח ככל האפשר, אך מנגד רציתי ליצור תחושת חמימות מרגיעה ומאופקת שתשדר את אופי המקצועי, החם והמוקפד של המרפאה ושל הצוות המקסים שפועל בה. בחרתי להשתמש בעץ כדי לשדר חמימות וגוונים של כחול, זהב, וורוד עדין שחוזרים על עצמם לאורך כל חללי המרפאה. את השירותים ואת גרם המדרגות במרפאה חיפיתי באלמנט של עץ עם חריצי הצצה שהוא אלמנט מאוד מרכזי שחוזר על עצמו גם בחדרי הטיפולים המאפשרים חדירת אור טבעי לאזור ההמתנה. בכדי להשלים את הקו העיצובי עיצבתי משאריות החומרים קישוט קיר בכניסה לחלל ההמתנה

MCH מרפאת השיניים
עיר: חולון
שטח: כ 120 מ"ר
מרפאת השיניים רוצ'מן-חסלוביצר הוקמה בשנת 1987 על ידי ד"ר דיאנה רוצ'מן וד"ר מרכוס חסלוביצר - מומחים ברפואת שיניים, ובעלי מוניטין רב שנים בתחום בריאות הפה והשיניים. זוג רופאים ותיק ומבוקש בעיר חולון
לאחרונה עברה מרפאת השיניים לכתובתה החדשה בעיר והזמינה אותי (כשאני מתרגשת עד מאוד מהמעמד) לתכנן להם את מעונם החדש
לידיי קיבלתי מבנה שהקבלן רק סיים לבנותו ואני עמדתי מול מעטפת קירות עירומה ומול אתגרים רבים
אחד האתגרים היה התהייה איך ליצור תכנון שיתאים להרגלים של זוג הרופאים הנהדר שרגיל למרפאה ששירתה אותם נאמנה מעל 30 שנה ועדיין ליצור משהו חדשני עם תחושה של בית
וכמובן היו האתגרים הטכניים של תכנון חדרי טיפולים, מערכות אינסטלציה, חשמל, מיזוג אוויר המותאמים למתקן רפואי, מערכות סטריליזציה, קירות במילוי יחודי נגד קרינה, אזור אחסון של ארכיון, אזור מנוחה לצוות, תכנון תאורה פונקציונית ודקורטיבית, הנגשה של המרפאה, וראייה עיצובית חדשנית למרפאה שהיא מוסד של ממש בעיר
בפועל חודשים ארוכים עמלתי על תכנון של כל התוכניות השונות ועמדתי מול הגורמים הרשמיים בכדי לוודא תקינות התוכניות. תכננתי לכל החללים נגרויות בהתאמה ארגונומטרית אישית ותוך חודשים הוצאנו לפועל את כל התכנון הנרחב והמרגש המוצג בפניכם
הקו העיצובי שכיוונתי אליו היה לשדר ניקיון ומרחב פתוח ככל האפשר, אך מנגד רציתי ליצור תחושת חמימות מרגיעה ומאופקת שתשדר את אופי המקצועי, החם והמוקפד של המרפאה ושל הצוות המקסים שפועל בה. בחרתי להשתמש בעץ כדי לשדר חמימות וגוונים של כחול, זהב, וורוד עדין שחוזרים על עצמם לאורך כל חללי המרפאה. את השירותים ואת גרם המדרגות במרפאה חיפיתי באלמנט של עץ עם חריצי הצצה שהוא אלמנט מאוד מרכזי שחוזר על עצמו גם בחדרי הטיפולים המאפשרים חדירת אור טבעי לאזור ההמתנה. בכדי להשלים את הקו העיצובי עיצבתי משאריות החומרים קישוט קיר בכניסה לחלל ההמתנה
עיר: חולון
שטח: כ 120 מ"ר
מרפאת השיניים רוצ'מן-חסלוביצר הוקמה בשנת 1987 על ידי ד"ר דיאנה רוצ'מן וד"ר מרכוס חסלוביצר - מומחים ברפואת שיניים, ובעלי מוניטין רב שנים בתחום בריאות הפה והשיניים. זוג רופאים ותיק ומבוקש בעיר חולון
לאחרונה עברה מרפאת השיניים לכתובתה החדשה בעיר והזמינה אותי (כשאני מתרגשת עד מאוד מהמעמד) לתכנן להם את מעונם החדש
לידיי קיבלתי מבנה שהקבלן רק סיים לבנותו ואני עמדתי מול מעטפת קירות עירומה ומול אתגרים רבים
אחד האתגרים היה התהייה איך ליצור תכנון שיתאים להרגלים של זוג הרופאים הנהדר שרגיל למרפאה ששירתה אותם נאמנה מעל 30 שנה ועדיין ליצור משהו חדשני עם תחושה של בית
וכמובן היו האתגרים הטכניים של תכנון חדרי טיפולים, מערכות אינסטלציה, חשמל, מיזוג אוויר המותאמים למתקן רפואי, מערכות סטריליזציה, קירות במילוי יחודי נגד קרינה, אזור אחסון של ארכיון, אזור מנוחה לצוות, תכנון תאורה פונקציונית ודקורטיבית, הנגשה של המרפאה, וראייה עיצובית חדשנית למרפאה שהיא מוסד של ממש בעיר
בפועל חודשים ארוכים עמלתי על תכנון של כל התוכניות השונות ועמדתי מול הגורמים הרשמיים בכדי לוודא תקינות התוכניות. תכננתי לכל החללים נגרויות בהתאמה ארגונומטרית אישית ותוך חודשים הוצאנו לפועל את כל התכנון הנרחב והמרגש המוצג בפניכם
הקו העיצובי שכיוונתי אליו היה לשדר ניקיון ומרחב פתוח ככל האפשר, אך מנגד רציתי ליצור תחושת חמימות מרגיעה ומאופקת שתשדר את אופי המקצועי, החם והמוקפד של המרפאה ושל הצוות המקסים שפועל בה. בחרתי להשתמש בעץ כדי לשדר חמימות וגוונים של כחול, זהב, וורוד עדין שחוזרים על עצמם לאורך כל חללי המרפאה. את השירותים ואת גרם המדרגות במרפאה חיפיתי באלמנט של עץ עם חריצי הצצה שהוא אלמנט מאוד מרכזי שחוזר על עצמו גם בחדרי הטיפולים המאפשרים חדירת אור טבעי לאזור ההמתנה. בכדי להשלים את הקו העיצובי עיצבתי משאריות החומרים קישוט קיר בכניסה לחלל ההמתנה

MCH Dental Clinic Holon
MCH מרפאת השיניים
עיר: חולון
שטח: כ 120 מ"ר
מרפאת השיניים רוצ'מן-חסלוביצר הוקמה בשנת 1987 על ידי ד"ר דיאנה רוצ'מן וד"ר מרכוס חסלוביצר - מומחים ברפואת שיניים, ובעלי מוניטין רב שנים בתחום בריאות הפה והשיניים. זוג רופאים ותיק ומבוקש בעיר חולון
לאחרונה עברה מרפאת השיניים לכתובתה החדשה בעיר והזמינה אותי (כשאני מתרגשת עד מאוד מהמעמד) לתכנן להם את מעונם החדש
לידיי קיבלתי מבנה שהקבלן רק סיים לבנותו ואני עמדתי מול מעטפת קירות עירומה ומול אתגרים רבים
אחד האתגרים היה התהייה איך ליצור תכנון שיתאים להרגלים של זוג הרופאים הנהדר שרגיל למרפאה ששירתה אותם נאמנה מעל 30 שנה ועדיין ליצור משהו חדשני עם תחושה של בית
וכמובן היו האתגרים הטכניים של תכנון חדרי טיפולים, מערכות אינסטלציה, חשמל, מיזוג אוויר המותאמים למתקן רפואי, מערכות סטריליזציה, קירות במילוי יחודי נגד קרינה, אזור אחסון של ארכיון, אזור מנוחה לצוות, תכנון תאורה פונקציונית ודקורטיבית, הנגשה של המרפאה, וראייה עיצובית חדשנית למרפאה שהיא מוסד של ממש בעיר
בפועל חודשים ארוכים עמלתי על תכנון של כל התוכניות השונות ועמדתי מול הגורמים הרשמיים בכדי לוודא תקינות התוכניות. תכננתי לכל החללים נגרויות בהתאמה ארגונומטרית אישית ותוך חודשים הוצאנו לפועל את כל התכנון הנרחב והמרגש המוצג בפניכם
הקו העיצובי שכיוונתי אליו היה לשדר ניקיון ומרחב פתוח ככל האפשר, אך מנגד רציתי ליצור תחושת חמימות מרגיעה ומאופקת שתשדר את אופי המקצועי, החם והמוקפד של המרפאה ושל הצוות המקסים שפועל בה. בחרתי להשתמש בעץ כדי לשדר חמימות וגוונים של כחול, זהב, וורוד עדין שחוזרים על עצמם לאורך כל חללי המרפאה. את השירותים ואת גרם המדרגות במרפאה חיפיתי באלמנט של עץ עם חריצי הצצה שהוא אלמנט מאוד מרכזי שחוזר על עצמו גם בחדרי הטיפולים המאפשרים חדירת אור טבעי לאזור ההמתנה. בכדי להשלים את הקו העיצובי עיצבתי משאריות החומרים קישוט קיר בכניסה לחלל ההמתנה
עיר: חולון
שטח: כ 120 מ"ר
מרפאת השיניים רוצ'מן-חסלוביצר הוקמה בשנת 1987 על ידי ד"ר דיאנה רוצ'מן וד"ר מרכוס חסלוביצר - מומחים ברפואת שיניים, ובעלי מוניטין רב שנים בתחום בריאות הפה והשיניים. זוג רופאים ותיק ומבוקש בעיר חולון
לאחרונה עברה מרפאת השיניים לכתובתה החדשה בעיר והזמינה אותי (כשאני מתרגשת עד מאוד מהמעמד) לתכנן להם את מעונם החדש
לידיי קיבלתי מבנה שהקבלן רק סיים לבנותו ואני עמדתי מול מעטפת קירות עירומה ומול אתגרים רבים
אחד האתגרים היה התהייה איך ליצור תכנון שיתאים להרגלים של זוג הרופאים הנהדר שרגיל למרפאה ששירתה אותם נאמנה מעל 30 שנה ועדיין ליצור משהו חדשני עם תחושה של בית
וכמובן היו האתגרים הטכניים של תכנון חדרי טיפולים, מערכות אינסטלציה, חשמל, מיזוג אוויר המותאמים למתקן רפואי, מערכות סטריליזציה, קירות במילוי יחודי נגד קרינה, אזור אחסון של ארכיון, אזור מנוחה לצוות, תכנון תאורה פונקציונית ודקורטיבית, הנגשה של המרפאה, וראייה עיצובית חדשנית למרפאה שהיא מוסד של ממש בעיר
בפועל חודשים ארוכים עמלתי על תכנון של כל התוכניות השונות ועמדתי מול הגורמים הרשמיים בכדי לוודא תקינות התוכניות. תכננתי לכל החללים נגרויות בהתאמה ארגונומטרית אישית ותוך חודשים הוצאנו לפועל את כל התכנון הנרחב והמרגש המוצג בפניכם
הקו העיצובי שכיוונתי אליו היה לשדר ניקיון ומרחב פתוח ככל האפשר, אך מנגד רציתי ליצור תחושת חמימות מרגיעה ומאופקת שתשדר את אופי המקצועי, החם והמוקפד של המרפאה ושל הצוות המקסים שפועל בה. בחרתי להשתמש בעץ כדי לשדר חמימות וגוונים של כחול, זהב, וורוד עדין שחוזרים על עצמם לאורך כל חללי המרפאה. את השירותים ואת גרם המדרגות במרפאה חיפיתי באלמנט של עץ עם חריצי הצצה שהוא אלמנט מאוד מרכזי שחוזר על עצמו גם בחדרי הטיפולים המאפשרים חדירת אור טבעי לאזור ההמתנה. בכדי להשלים את הקו העיצובי עיצבתי משאריות החומרים קישוט קיר בכניסה לחלל ההמתנה

MCH Dental Clinic Holon
MCH מרפאת השיניים
עיר: חולון
שטח: כ 120 מ"ר
מרפאת השיניים רוצ'מן-חסלוביצר הוקמה בשנת 1987 על ידי ד"ר דיאנה רוצ'מן וד"ר מרכוס חסלוביצר - מומחים ברפואת שיניים, ובעלי מוניטין רב שנים בתחום בריאות הפה והשיניים. זוג רופאים ותיק ומבוקש בעיר חולון
לאחרונה עברה מרפאת השיניים לכתובתה החדשה בעיר והזמינה אותי (כשאני מתרגשת עד מאוד מהמעמד) לתכנן להם את מעונם החדש
לידיי קיבלתי מבנה שהקבלן רק סיים לבנותו ואני עמדתי מול מעטפת קירות עירומה ומול אתגרים רבים
אחד האתגרים היה התהייה איך ליצור תכנון שיתאים להרגלים של זוג הרופאים הנהדר שרגיל למרפאה ששירתה אותם נאמנה מעל 30 שנה ועדיין ליצור משהו חדשני עם תחושה של בית
וכמובן היו האתגרים הטכניים של תכנון חדרי טיפולים, מערכות אינסטלציה, חשמל, מיזוג אוויר המותאמים למתקן רפואי, מערכות סטריליזציה, קירות במילוי יחודי נגד קרינה, אזור אחסון של ארכיון, אזור מנוחה לצוות, תכנון תאורה פונקציונית ודקורטיבית, הנגשה של המרפאה, וראייה עיצובית חדשנית למרפאה שהיא מוסד של ממש בעיר
בפועל חודשים ארוכים עמלתי על תכנון של כל התוכניות השונות ועמדתי מול הגורמים הרשמיים בכדי לוודא תקינות התוכניות. תכננתי לכל החללים נגרויות בהתאמה ארגונומטרית אישית ותוך חודשים הוצאנו לפועל את כל התכנון הנרחב והמרגש המוצג בפניכם
הקו העיצובי שכיוונתי אליו היה לשדר ניקיון ומרחב פתוח ככל האפשר, אך מנגד רציתי ליצור תחושת חמימות מרגיעה ומאופקת שתשדר את אופי המקצועי, החם והמוקפד של המרפאה ושל הצוות המקסים שפועל בה. בחרתי להשתמש בעץ כדי לשדר חמימות וגוונים של כחול, זהב, וורוד עדין שחוזרים על עצמם לאורך כל חללי המרפאה. את השירותים ואת גרם המדרגות במרפאה חיפיתי באלמנט של עץ עם חריצי הצצה שהוא אלמנט מאוד מרכזי שחוזר על עצמו גם בחדרי הטיפולים המאפשרים חדירת אור טבעי לאזור ההמתנה. בכדי להשלים את הקו העיצובי עיצבתי משאריות החומרים קישוט קיר בכניסה לחלל ההמתנה
עיר: חולון
שטח: כ 120 מ"ר
מרפאת השיניים רוצ'מן-חסלוביצר הוקמה בשנת 1987 על ידי ד"ר דיאנה רוצ'מן וד"ר מרכוס חסלוביצר - מומחים ברפואת שיניים, ובעלי מוניטין רב שנים בתחום בריאות הפה והשיניים. זוג רופאים ותיק ומבוקש בעיר חולון
לאחרונה עברה מרפאת השיניים לכתובתה החדשה בעיר והזמינה אותי (כשאני מתרגשת עד מאוד מהמעמד) לתכנן להם את מעונם החדש
לידיי קיבלתי מבנה שהקבלן רק סיים לבנותו ואני עמדתי מול מעטפת קירות עירומה ומול אתגרים רבים
אחד האתגרים היה התהייה איך ליצור תכנון שיתאים להרגלים של זוג הרופאים הנהדר שרגיל למרפאה ששירתה אותם נאמנה מעל 30 שנה ועדיין ליצור משהו חדשני עם תחושה של בית
וכמובן היו האתגרים הטכניים של תכנון חדרי טיפולים, מערכות אינסטלציה, חשמל, מיזוג אוויר המותאמים למתקן רפואי, מערכות סטריליזציה, קירות במילוי יחודי נגד קרינה, אזור אחסון של ארכיון, אזור מנוחה לצוות, תכנון תאורה פונקציונית ודקורטיבית, הנגשה של המרפאה, וראייה עיצובית חדשנית למרפאה שהיא מוסד של ממש בעיר
בפועל חודשים ארוכים עמלתי על תכנון של כל התוכניות השונות ועמדתי מול הגורמים הרשמיים בכדי לוודא תקינות התוכניות. תכננתי לכל החללים נגרויות בהתאמה ארגונומטרית אישית ותוך חודשים הוצאנו לפועל את כל התכנון הנרחב והמרגש המוצג בפניכם
הקו העיצובי שכיוונתי אליו היה לשדר ניקיון ומרחב פתוח ככל האפשר, אך מנגד רציתי ליצור תחושת חמימות מרגיעה ומאופקת שתשדר את אופי המקצועי, החם והמוקפד של המרפאה ושל הצוות המקסים שפועל בה. בחרתי להשתמש בעץ כדי לשדר חמימות וגוונים של כחול, זהב, וורוד עדין שחוזרים על עצמם לאורך כל חללי המרפאה. את השירותים ואת גרם המדרגות במרפאה חיפיתי באלמנט של עץ עם חריצי הצצה שהוא אלמנט מאוד מרכזי שחוזר על עצמו גם בחדרי הטיפולים המאפשרים חדירת אור טבעי לאזור ההמתנה. בכדי להשלים את הקו העיצובי עיצבתי משאריות החומרים קישוט קיר בכניסה לחלל ההמתנה

MCH Dental Clinic Holon
MCH מרפאת השיניים
עיר: חולון
שטח: כ 120 מ"ר
מרפאת השיניים רוצ'מן-חסלוביצר הוקמה בשנת 1987 על ידי ד"ר דיאנה רוצ'מן וד"ר מרכוס חסלוביצר - מומחים ברפואת שיניים, ובעלי מוניטין רב שנים בתחום בריאות הפה והשיניים. זוג רופאים ותיק ומבוקש בעיר חולון
לאחרונה עברה מרפאת השיניים לכתובתה החדשה בעיר והזמינה אותי (כשאני מתרגשת עד מאוד מהמעמד) לתכנן להם את מעונם החדש
לידיי קיבלתי מבנה שהקבלן רק סיים לבנותו ואני עמדתי מול מעטפת קירות עירומה ומול אתגרים רבים
אחד האתגרים היה התהייה איך ליצור תכנון שיתאים להרגלים של זוג הרופאים הנהדר שרגיל למרפאה ששירתה אותם נאמנה מעל 30 שנה ועדיין ליצור משהו חדשני עם תחושה של בית
וכמובן היו האתגרים הטכניים של תכנון חדרי טיפולים, מערכות אינסטלציה, חשמל, מיזוג אוויר המותאמים למתקן רפואי, מערכות סטריליזציה, קירות במילוי יחודי נגד קרינה, אזור אחסון של ארכיון, אזור מנוחה לצוות, תכנון תאורה פונקציונית ודקורטיבית, הנגשה של המרפאה, וראייה עיצובית חדשנית למרפאה שהיא מוסד של ממש בעיר
בפועל חודשים ארוכים עמלתי על תכנון של כל התוכניות השונות ועמדתי מול הגורמים הרשמיים בכדי לוודא תקינות התוכניות. תכננתי לכל החללים נגרויות בהתאמה ארגונומטרית אישית ותוך חודשים הוצאנו לפועל את כל התכנון הנרחב והמרגש המוצג בפניכם
הקו העיצובי שכיוונתי אליו היה לשדר ניקיון ומרחב פתוח ככל האפשר, אך מנגד רציתי ליצור תחושת חמימות מרגיעה ומאופקת שתשדר את אופי המקצועי, החם והמוקפד של המרפאה ושל הצוות המקסים שפועל בה. בחרתי להשתמש בעץ כדי לשדר חמימות וגוונים של כחול, זהב, וורוד עדין שחוזרים על עצמם לאורך כל חללי המרפאה. את השירותים ואת גרם המדרגות במרפאה חיפיתי באלמנט של עץ עם חריצי הצצה שהוא אלמנט מאוד מרכזי שחוזר על עצמו גם בחדרי הטיפולים המאפשרים חדירת אור טבעי לאזור ההמתנה. בכדי להשלים את הקו העיצובי עיצבתי משאריות החומרים קישוט קיר בכניסה לחלל ההמתנה
עיר: חולון
שטח: כ 120 מ"ר
מרפאת השיניים רוצ'מן-חסלוביצר הוקמה בשנת 1987 על ידי ד"ר דיאנה רוצ'מן וד"ר מרכוס חסלוביצר - מומחים ברפואת שיניים, ובעלי מוניטין רב שנים בתחום בריאות הפה והשיניים. זוג רופאים ותיק ומבוקש בעיר חולון
לאחרונה עברה מרפאת השיניים לכתובתה החדשה בעיר והזמינה אותי (כשאני מתרגשת עד מאוד מהמעמד) לתכנן להם את מעונם החדש
לידיי קיבלתי מבנה שהקבלן רק סיים לבנותו ואני עמדתי מול מעטפת קירות עירומה ומול אתגרים רבים
אחד האתגרים היה התהייה איך ליצור תכנון שיתאים להרגלים של זוג הרופאים הנהדר שרגיל למרפאה ששירתה אותם נאמנה מעל 30 שנה ועדיין ליצור משהו חדשני עם תחושה של בית
וכמובן היו האתגרים הטכניים של תכנון חדרי טיפולים, מערכות אינסטלציה, חשמל, מיזוג אוויר המותאמים למתקן רפואי, מערכות סטריליזציה, קירות במילוי יחודי נגד קרינה, אזור אחסון של ארכיון, אזור מנוחה לצוות, תכנון תאורה פונקציונית ודקורטיבית, הנגשה של המרפאה, וראייה עיצובית חדשנית למרפאה שהיא מוסד של ממש בעיר
בפועל חודשים ארוכים עמלתי על תכנון של כל התוכניות השונות ועמדתי מול הגורמים הרשמיים בכדי לוודא תקינות התוכניות. תכננתי לכל החללים נגרויות בהתאמה ארגונומטרית אישית ותוך חודשים הוצאנו לפועל את כל התכנון הנרחב והמרגש המוצג בפניכם
הקו העיצובי שכיוונתי אליו היה לשדר ניקיון ומרחב פתוח ככל האפשר, אך מנגד רציתי ליצור תחושת חמימות מרגיעה ומאופקת שתשדר את אופי המקצועי, החם והמוקפד של המרפאה ושל הצוות המקסים שפועל בה. בחרתי להשתמש בעץ כדי לשדר חמימות וגוונים של כחול, זהב, וורוד עדין שחוזרים על עצמם לאורך כל חללי המרפאה. את השירותים ואת גרם המדרגות במרפאה חיפיתי באלמנט של עץ עם חריצי הצצה שהוא אלמנט מאוד מרכזי שחוזר על עצמו גם בחדרי הטיפולים המאפשרים חדירת אור טבעי לאזור ההמתנה. בכדי להשלים את הקו העיצובי עיצבתי משאריות החומרים קישוט קיר בכניסה לחלל ההמתנה

MCH Dental Clinic Holon
MCH מרפאת השיניים
עיר: חולון
שטח: כ 120 מ"ר
מרפאת השיניים רוצ'מן-חסלוביצר הוקמה בשנת 1987 על ידי ד"ר דיאנה רוצ'מן וד"ר מרכוס חסלוביצר - מומחים ברפואת שיניים, ובעלי מוניטין רב שנים בתחום בריאות הפה והשיניים. זוג רופאים ותיק ומבוקש בעיר חולון
לאחרונה עברה מרפאת השיניים לכתובתה החדשה בעיר והזמינה אותי (כשאני מתרגשת עד מאוד מהמעמד) לתכנן להם את מעונם החדש
לידיי קיבלתי מבנה שהקבלן רק סיים לבנותו ואני עמדתי מול מעטפת קירות עירומה ומול אתגרים רבים
אחד האתגרים היה התהייה איך ליצור תכנון שיתאים להרגלים של זוג הרופאים הנהדר שרגיל למרפאה ששירתה אותם נאמנה מעל 30 שנה ועדיין ליצור משהו חדשני עם תחושה של בית
וכמובן היו האתגרים הטכניים של תכנון חדרי טיפולים, מערכות אינסטלציה, חשמל, מיזוג אוויר המותאמים למתקן רפואי, מערכות סטריליזציה, קירות במילוי יחודי נגד קרינה, אזור אחסון של ארכיון, אזור מנוחה לצוות, תכנון תאורה פונקציונית ודקורטיבית, הנגשה של המרפאה, וראייה עיצובית חדשנית למרפאה שהיא מוסד של ממש בעיר
בפועל חודשים ארוכים עמלתי על תכנון של כל התוכניות השונות ועמדתי מול הגורמים הרשמיים בכדי לוודא תקינות התוכניות. תכננתי לכל החללים נגרויות בהתאמה ארגונומטרית אישית ותוך חודשים הוצאנו לפועל את כל התכנון הנרחב והמרגש המוצג בפניכם
הקו העיצובי שכיוונתי אליו היה לשדר ניקיון ומרחב פתוח ככל האפשר, אך מנגד רציתי ליצור תחושת חמימות מרגיעה ומאופקת שתשדר את אופי המקצועי, החם והמוקפד של המרפאה ושל הצוות המקסים שפועל בה. בחרתי להשתמש בעץ כדי לשדר חמימות וגוונים של כחול, זהב, וורוד עדין שחוזרים על עצמם לאורך כל חללי המרפאה. את השירותים ואת גרם המדרגות במרפאה חיפיתי באלמנט של עץ עם חריצי הצצה שהוא אלמנט מאוד מרכזי שחוזר על עצמו גם בחדרי הטיפולים המאפשרים חדירת אור טבעי לאזור ההמתנה. בכדי להשלים את הקו העיצובי עיצבתי משאריות החומרים קישוט קיר בכניסה לחלל ההמתנה
עיר: חולון
שטח: כ 120 מ"ר
מרפאת השיניים רוצ'מן-חסלוביצר הוקמה בשנת 1987 על ידי ד"ר דיאנה רוצ'מן וד"ר מרכוס חסלוביצר - מומחים ברפואת שיניים, ובעלי מוניטין רב שנים בתחום בריאות הפה והשיניים. זוג רופאים ותיק ומבוקש בעיר חולון
לאחרונה עברה מרפאת השיניים לכתובתה החדשה בעיר והזמינה אותי (כשאני מתרגשת עד מאוד מהמעמד) לתכנן להם את מעונם החדש
לידיי קיבלתי מבנה שהקבלן רק סיים לבנותו ואני עמדתי מול מעטפת קירות עירומה ומול אתגרים רבים
אחד האתגרים היה התהייה איך ליצור תכנון שיתאים להרגלים של זוג הרופאים הנהדר שרגיל למרפאה ששירתה אותם נאמנה מעל 30 שנה ועדיין ליצור משהו חדשני עם תחושה של בית
וכמובן היו האתגרים הטכניים של תכנון חדרי טיפולים, מערכות אינסטלציה, חשמל, מיזוג אוויר המותאמים למתקן רפואי, מערכות סטריליזציה, קירות במילוי יחודי נגד קרינה, אזור אחסון של ארכיון, אזור מנוחה לצוות, תכנון תאורה פונקציונית ודקורטיבית, הנגשה של המרפאה, וראייה עיצובית חדשנית למרפאה שהיא מוסד של ממש בעיר
בפועל חודשים ארוכים עמלתי על תכנון של כל התוכניות השונות ועמדתי מול הגורמים הרשמיים בכדי לוודא תקינות התוכניות. תכננתי לכל החללים נגרויות בהתאמה ארגונומטרית אישית ותוך חודשים הוצאנו לפועל את כל התכנון הנרחב והמרגש המוצג בפניכם
הקו העיצובי שכיוונתי אליו היה לשדר ניקיון ומרחב פתוח ככל האפשר, אך מנגד רציתי ליצור תחושת חמימות מרגיעה ומאופקת שתשדר את אופי המקצועי, החם והמוקפד של המרפאה ושל הצוות המקסים שפועל בה. בחרתי להשתמש בעץ כדי לשדר חמימות וגוונים של כחול, זהב, וורוד עדין שחוזרים על עצמם לאורך כל חללי המרפאה. את השירותים ואת גרם המדרגות במרפאה חיפיתי באלמנט של עץ עם חריצי הצצה שהוא אלמנט מאוד מרכזי שחוזר על עצמו גם בחדרי הטיפולים המאפשרים חדירת אור טבעי לאזור ההמתנה. בכדי להשלים את הקו העיצובי עיצבתי משאריות החומרים קישוט קיר בכניסה לחלל ההמתנה

MCH Dental Clinic Holon
MCH מרפאת השיניים
עיר: חולון
שטח: כ 120 מ"ר
מרפאת השיניים רוצ'מן-חסלוביצר הוקמה בשנת 1987 על ידי ד"ר דיאנה רוצ'מן וד"ר מרכוס חסלוביצר - מומחים ברפואת שיניים, ובעלי מוניטין רב שנים בתחום בריאות הפה והשיניים. זוג רופאים ותיק ומבוקש בעיר חולון
לאחרונה עברה מרפאת השיניים לכתובתה החדשה בעיר והזמינה אותי (כשאני מתרגשת עד מאוד מהמעמד) לתכנן להם את מעונם החדש
לידיי קיבלתי מבנה שהקבלן רק סיים לבנותו ואני עמדתי מול מעטפת קירות עירומה ומול אתגרים רבים
אחד האתגרים היה התהייה איך ליצור תכנון שיתאים להרגלים של זוג הרופאים הנהדר שרגיל למרפאה ששירתה אותם נאמנה מעל 30 שנה ועדיין ליצור משהו חדשני עם תחושה של בית
וכמובן היו האתגרים הטכניים של תכנון חדרי טיפולים, מערכות אינסטלציה, חשמל, מיזוג אוויר המותאמים למתקן רפואי, מערכות סטריליזציה, קירות במילוי יחודי נגד קרינה, אזור אחסון של ארכיון, אזור מנוחה לצוות, תכנון תאורה פונקציונית ודקורטיבית, הנגשה של המרפאה, וראייה עיצובית חדשנית למרפאה שהיא מוסד של ממש בעיר
בפועל חודשים ארוכים עמלתי על תכנון של כל התוכניות השונות ועמדתי מול הגורמים הרשמיים בכדי לוודא תקינות התוכניות. תכננתי לכל החללים נגרויות בהתאמה ארגונומטרית אישית ותוך חודשים הוצאנו לפועל את כל התכנון הנרחב והמרגש המוצג בפניכם
הקו העיצובי שכיוונתי אליו היה לשדר ניקיון ומרחב פתוח ככל האפשר, אך מנגד רציתי ליצור תחושת חמימות מרגיעה ומאופקת שתשדר את אופי המקצועי, החם והמוקפד של המרפאה ושל הצוות המקסים שפועל בה. בחרתי להשתמש בעץ כדי לשדר חמימות וגוונים של כחול, זהב, וורוד עדין שחוזרים על עצמם לאורך כל חללי המרפאה. את השירותים ואת גרם המדרגות במרפאה חיפיתי באלמנט של עץ עם חריצי הצצה שהוא אלמנט מאוד מרכזי שחוזר על עצמו גם בחדרי הטיפולים המאפשרים חדירת אור טבעי לאזור ההמתנה. בכדי להשלים את הקו העיצובי עיצבתי משאריות החומרים קישוט קיר בכניסה לחלל ההמתנה
עיר: חולון
שטח: כ 120 מ"ר
מרפאת השיניים רוצ'מן-חסלוביצר הוקמה בשנת 1987 על ידי ד"ר דיאנה רוצ'מן וד"ר מרכוס חסלוביצר - מומחים ברפואת שיניים, ובעלי מוניטין רב שנים בתחום בריאות הפה והשיניים. זוג רופאים ותיק ומבוקש בעיר חולון
לאחרונה עברה מרפאת השיניים לכתובתה החדשה בעיר והזמינה אותי (כשאני מתרגשת עד מאוד מהמעמד) לתכנן להם את מעונם החדש
לידיי קיבלתי מבנה שהקבלן רק סיים לבנותו ואני עמדתי מול מעטפת קירות עירומה ומול אתגרים רבים
אחד האתגרים היה התהייה איך ליצור תכנון שיתאים להרגלים של זוג הרופאים הנהדר שרגיל למרפאה ששירתה אותם נאמנה מעל 30 שנה ועדיין ליצור משהו חדשני עם תחושה של בית
וכמובן היו האתגרים הטכניים של תכנון חדרי טיפולים, מערכות אינסטלציה, חשמל, מיזוג אוויר המותאמים למתקן רפואי, מערכות סטריליזציה, קירות במילוי יחודי נגד קרינה, אזור אחסון של ארכיון, אזור מנוחה לצוות, תכנון תאורה פונקציונית ודקורטיבית, הנגשה של המרפאה, וראייה עיצובית חדשנית למרפאה שהיא מוסד של ממש בעיר
בפועל חודשים ארוכים עמלתי על תכנון של כל התוכניות השונות ועמדתי מול הגורמים הרשמיים בכדי לוודא תקינות התוכניות. תכננתי לכל החללים נגרויות בהתאמה ארגונומטרית אישית ותוך חודשים הוצאנו לפועל את כל התכנון הנרחב והמרגש המוצג בפניכם
הקו העיצובי שכיוונתי אליו היה לשדר ניקיון ומרחב פתוח ככל האפשר, אך מנגד רציתי ליצור תחושת חמימות מרגיעה ומאופקת שתשדר את אופי המקצועי, החם והמוקפד של המרפאה ושל הצוות המקסים שפועל בה. בחרתי להשתמש בעץ כדי לשדר חמימות וגוונים של כחול, זהב, וורוד עדין שחוזרים על עצמם לאורך כל חללי המרפאה. את השירותים ואת גרם המדרגות במרפאה חיפיתי באלמנט של עץ עם חריצי הצצה שהוא אלמנט מאוד מרכזי שחוזר על עצמו גם בחדרי הטיפולים המאפשרים חדירת אור טבעי לאזור ההמתנה. בכדי להשלים את הקו העיצובי עיצבתי משאריות החומרים קישוט קיר בכניסה לחלל ההמתנה

MCH Dental Clinic Holon
MCH מרפאת השיניים
עיר: חולון
שטח: כ 120 מ"ר
מרפאת השיניים רוצ'מן-חסלוביצר הוקמה בשנת 1987 על ידי ד"ר דיאנה רוצ'מן וד"ר מרכוס חסלוביצר - מומחים ברפואת שיניים, ובעלי מוניטין רב שנים בתחום בריאות הפה והשיניים. זוג רופאים ותיק ומבוקש בעיר חולון
לאחרונה עברה מרפאת השיניים לכתובתה החדשה בעיר והזמינה אותי (כשאני מתרגשת עד מאוד מהמעמד) לתכנן להם את מעונם החדש
לידיי קיבלתי מבנה שהקבלן רק סיים לבנותו ואני עמדתי מול מעטפת קירות עירומה ומול אתגרים רבים
אחד האתגרים היה התהייה איך ליצור תכנון שיתאים להרגלים של זוג הרופאים הנהדר שרגיל למרפאה ששירתה אותם נאמנה מעל 30 שנה ועדיין ליצור משהו חדשני עם תחושה של בית
וכמובן היו האתגרים הטכניים של תכנון חדרי טיפולים, מערכות אינסטלציה, חשמל, מיזוג אוויר המותאמים למתקן רפואי, מערכות סטריליזציה, קירות במילוי יחודי נגד קרינה, אזור אחסון של ארכיון, אזור מנוחה לצוות, תכנון תאורה פונקציונית ודקורטיבית, הנגשה של המרפאה, וראייה עיצובית חדשנית למרפאה שהיא מוסד של ממש בעיר
בפועל חודשים ארוכים עמלתי על תכנון של כל התוכניות השונות ועמדתי מול הגורמים הרשמיים בכדי לוודא תקינות התוכניות. תכננתי לכל החללים נגרויות בהתאמה ארגונומטרית אישית ותוך חודשים הוצאנו לפועל את כל התכנון הנרחב והמרגש המוצג בפניכם
הקו העיצובי שכיוונתי אליו היה לשדר ניקיון ומרחב פתוח ככל האפשר, אך מנגד רציתי ליצור תחושת חמימות מרגיעה ומאופקת שתשדר את אופי המקצועי, החם והמוקפד של המרפאה ושל הצוות המקסים שפועל בה. בחרתי להשתמש בעץ כדי לשדר חמימות וגוונים של כחול, זהב, וורוד עדין שחוזרים על עצמם לאורך כל חללי המרפאה. את השירותים ואת גרם המדרגות במרפאה חיפיתי באלמנט של עץ עם חריצי הצצה שהוא אלמנט מאוד מרכזי שחוזר על עצמו גם בחדרי הטיפולים המאפשרים חדירת אור טבעי לאזור ההמתנה. בכדי להשלים את הקו העיצובי עיצבתי משאריות החומרים קישוט קיר בכניסה לחלל ההמתנה
עיר: חולון
שטח: כ 120 מ"ר
מרפאת השיניים רוצ'מן-חסלוביצר הוקמה בשנת 1987 על ידי ד"ר דיאנה רוצ'מן וד"ר מרכוס חסלוביצר - מומחים ברפואת שיניים, ובעלי מוניטין רב שנים בתחום בריאות הפה והשיניים. זוג רופאים ותיק ומבוקש בעיר חולון
לאחרונה עברה מרפאת השיניים לכתובתה החדשה בעיר והזמינה אותי (כשאני מתרגשת עד מאוד מהמעמד) לתכנן להם את מעונם החדש
לידיי קיבלתי מבנה שהקבלן רק סיים לבנותו ואני עמדתי מול מעטפת קירות עירומה ומול אתגרים רבים
אחד האתגרים היה התהייה איך ליצור תכנון שיתאים להרגלים של זוג הרופאים הנהדר שרגיל למרפאה ששירתה אותם נאמנה מעל 30 שנה ועדיין ליצור משהו חדשני עם תחושה של בית
וכמובן היו האתגרים הטכניים של תכנון חדרי טיפולים, מערכות אינסטלציה, חשמל, מיזוג אוויר המותאמים למתקן רפואי, מערכות סטריליזציה, קירות במילוי יחודי נגד קרינה, אזור אחסון של ארכיון, אזור מנוחה לצוות, תכנון תאורה פונקציונית ודקורטיבית, הנגשה של המרפאה, וראייה עיצובית חדשנית למרפאה שהיא מוסד של ממש בעיר
בפועל חודשים ארוכים עמלתי על תכנון של כל התוכניות השונות ועמדתי מול הגורמים הרשמיים בכדי לוודא תקינות התוכניות. תכננתי לכל החללים נגרויות בהתאמה ארגונומטרית אישית ותוך חודשים הוצאנו לפועל את כל התכנון הנרחב והמרגש המוצג בפניכם
הקו העיצובי שכיוונתי אליו היה לשדר ניקיון ומרחב פתוח ככל האפשר, אך מנגד רציתי ליצור תחושת חמימות מרגיעה ומאופקת שתשדר את אופי המקצועי, החם והמוקפד של המרפאה ושל הצוות המקסים שפועל בה. בחרתי להשתמש בעץ כדי לשדר חמימות וגוונים של כחול, זהב, וורוד עדין שחוזרים על עצמם לאורך כל חללי המרפאה. את השירותים ואת גרם המדרגות במרפאה חיפיתי באלמנט של עץ עם חריצי הצצה שהוא אלמנט מאוד מרכזי שחוזר על עצמו גם בחדרי הטיפולים המאפשרים חדירת אור טבעי לאזור ההמתנה. בכדי להשלים את הקו העיצובי עיצבתי משאריות החומרים קישוט קיר בכניסה לחלל ההמתנה

MCH Dental Clinic Holon
MCH מרפאת השיניים
עיר: חולון
שטח: כ 120 מ"ר
מרפאת השיניים רוצ'מן-חסלוביצר הוקמה בשנת 1987 על ידי ד"ר דיאנה רוצ'מן וד"ר מרכוס חסלוביצר - מומחים ברפואת שיניים, ובעלי מוניטין רב שנים בתחום בריאות הפה והשיניים. זוג רופאים ותיק ומבוקש בעיר חולון
לאחרונה עברה מרפאת השיניים לכתובתה החדשה בעיר והזמינה אותי (כשאני מתרגשת עד מאוד מהמעמד) לתכנן להם את מעונם החדש
לידיי קיבלתי מבנה שהקבלן רק סיים לבנותו ואני עמדתי מול מעטפת קירות עירומה ומול אתגרים רבים
אחד האתגרים היה התהייה איך ליצור תכנון שיתאים להרגלים של זוג הרופאים הנהדר שרגיל למרפאה ששירתה אותם נאמנה מעל 30 שנה ועדיין ליצור משהו חדשני עם תחושה של בית
וכמובן היו האתגרים הטכניים של תכנון חדרי טיפולים, מערכות אינסטלציה, חשמל, מיזוג אוויר המותאמים למתקן רפואי, מערכות סטריליזציה, קירות במילוי יחודי נגד קרינה, אזור אחסון של ארכיון, אזור מנוחה לצוות, תכנון תאורה פונקציונית ודקורטיבית, הנגשה של המרפאה, וראייה עיצובית חדשנית למרפאה שהיא מוסד של ממש בעיר
בפועל חודשים ארוכים עמלתי על תכנון של כל התוכניות השונות ועמדתי מול הגורמים הרשמיים בכדי לוודא תקינות התוכניות. תכננתי לכל החללים נגרויות בהתאמה ארגונומטרית אישית ותוך חודשים הוצאנו לפועל את כל התכנון הנרחב והמרגש המוצג בפניכם
הקו העיצובי שכיוונתי אליו היה לשדר ניקיון ומרחב פתוח ככל האפשר, אך מנגד רציתי ליצור תחושת חמימות מרגיעה ומאופקת שתשדר את אופי המקצועי, החם והמוקפד של המרפאה ושל הצוות המקסים שפועל בה. בחרתי להשתמש בעץ כדי לשדר חמימות וגוונים של כחול, זהב, וורוד עדין שחוזרים על עצמם לאורך כל חללי המרפאה. את השירותים ואת גרם המדרגות במרפאה חיפיתי באלמנט של עץ עם חריצי הצצה שהוא אלמנט מאוד מרכזי שחוזר על עצמו גם בחדרי הטיפולים המאפשרים חדירת אור טבעי לאזור ההמתנה. בכדי להשלים את הקו העיצובי עיצבתי משאריות החומרים קישוט קיר בכניסה לחלל ההמתנה
עיר: חולון
שטח: כ 120 מ"ר
מרפאת השיניים רוצ'מן-חסלוביצר הוקמה בשנת 1987 על ידי ד"ר דיאנה רוצ'מן וד"ר מרכוס חסלוביצר - מומחים ברפואת שיניים, ובעלי מוניטין רב שנים בתחום בריאות הפה והשיניים. זוג רופאים ותיק ומבוקש בעיר חולון
לאחרונה עברה מרפאת השיניים לכתובתה החדשה בעיר והזמינה אותי (כשאני מתרגשת עד מאוד מהמעמד) לתכנן להם את מעונם החדש
לידיי קיבלתי מבנה שהקבלן רק סיים לבנותו ואני עמדתי מול מעטפת קירות עירומה ומול אתגרים רבים
אחד האתגרים היה התהייה איך ליצור תכנון שיתאים להרגלים של זוג הרופאים הנהדר שרגיל למרפאה ששירתה אותם נאמנה מעל 30 שנה ועדיין ליצור משהו חדשני עם תחושה של בית
וכמובן היו האתגרים הטכניים של תכנון חדרי טיפולים, מערכות אינסטלציה, חשמל, מיזוג אוויר המותאמים למתקן רפואי, מערכות סטריליזציה, קירות במילוי יחודי נגד קרינה, אזור אחסון של ארכיון, אזור מנוחה לצוות, תכנון תאורה פונקציונית ודקורטיבית, הנגשה של המרפאה, וראייה עיצובית חדשנית למרפאה שהיא מוסד של ממש בעיר
בפועל חודשים ארוכים עמלתי על תכנון של כל התוכניות השונות ועמדתי מול הגורמים הרשמיים בכדי לוודא תקינות התוכניות. תכננתי לכל החללים נגרויות בהתאמה ארגונומטרית אישית ותוך חודשים הוצאנו לפועל את כל התכנון הנרחב והמרגש המוצג בפניכם
הקו העיצובי שכיוונתי אליו היה לשדר ניקיון ומרחב פתוח ככל האפשר, אך מנגד רציתי ליצור תחושת חמימות מרגיעה ומאופקת שתשדר את אופי המקצועי, החם והמוקפד של המרפאה ושל הצוות המקסים שפועל בה. בחרתי להשתמש בעץ כדי לשדר חמימות וגוונים של כחול, זהב, וורוד עדין שחוזרים על עצמם לאורך כל חללי המרפאה. את השירותים ואת גרם המדרגות במרפאה חיפיתי באלמנט של עץ עם חריצי הצצה שהוא אלמנט מאוד מרכזי שחוזר על עצמו גם בחדרי הטיפולים המאפשרים חדירת אור טבעי לאזור ההמתנה. בכדי להשלים את הקו העיצובי עיצבתי משאריות החומרים קישוט קיר בכניסה לחלל ההמתנה

M&R Fam Yavne
בית פרטי
עיר: יבנה, שכונת אילן
דיירים: זוג מבוגרים שהילדים עזבו את הקן
תכנון ושיפוץ שתי יחידות אירוח בשני מפלסים שונים
מטרת העל של השיפוץ לאפשר ולעודד אירוח נעים ונוח של הילדים שחוזרים לקן יחד עם בני הזוג והילדים הקטנטנים
אופי השיפוץ: את השיפוץ ביצענו בשלבים מאחר ומדובר בשני מפלסים שונים בעת ששגרת החיי יומיום נשמרו בבית בעת ביצוע השיפוץ בבית
תהליך התכנון והשיפוץ כלל הסרת קירות מיותרים, תכנון אזור מגורי ילדים חדש, שיפוץ כללי של חדרי רחצה, החלפת חיפויים ואביזרים סניטרים. הזזת נקודות חשמל ותאורה. תכנון וביצוע נגרות מותאמת אישית, החלפת ריהוט, גופי תאורה וכו
וכל זה בזמן קצוב מאוד והכל כדי לעלות חיוך גדול על פני הלקוחות היקרים
עיר: יבנה, שכונת אילן
דיירים: זוג מבוגרים שהילדים עזבו את הקן
תכנון ושיפוץ שתי יחידות אירוח בשני מפלסים שונים
מטרת העל של השיפוץ לאפשר ולעודד אירוח נעים ונוח של הילדים שחוזרים לקן יחד עם בני הזוג והילדים הקטנטנים
אופי השיפוץ: את השיפוץ ביצענו בשלבים מאחר ומדובר בשני מפלסים שונים בעת ששגרת החיי יומיום נשמרו בבית בעת ביצוע השיפוץ בבית
תהליך התכנון והשיפוץ כלל הסרת קירות מיותרים, תכנון אזור מגורי ילדים חדש, שיפוץ כללי של חדרי רחצה, החלפת חיפויים ואביזרים סניטרים. הזזת נקודות חשמל ותאורה. תכנון וביצוע נגרות מותאמת אישית, החלפת ריהוט, גופי תאורה וכו
וכל זה בזמן קצוב מאוד והכל כדי לעלות חיוך גדול על פני הלקוחות היקרים













Mor Dental Clinic Holon
מרפאת שיניים מור קליניק
עיר: חולון
שטח: כ 43 מ"ר
המרפאה ממוקמת בפסאג' בעיר חולון בשכונת בן גוריון
עיר: חולון
שטח: כ 43 מ"ר
המרפאה ממוקמת בפסאג' בעיר חולון בשכונת בן גוריון

מרפאת שיניים מור קליניק
עיר: חולון
שטח: כ 43 מ"ר
המרפאה ממוקמת בפסאג' בעיר חולון בשכונת בן גוריון
עיר: חולון
שטח: כ 43 מ"ר
המרפאה ממוקמת בפסאג' בעיר חולון בשכונת בן גוריון

מרפאת שיניים מור קליניק
עיר: חולון
שטח: כ 43 מ"ר
המרפאה ממוקמת בפסאג' בעיר חולון בשכונת בן גוריון
עיר: חולון
שטח: כ 43 מ"ר
המרפאה ממוקמת בפסאג' בעיר חולון בשכונת בן גוריון

מרפאת שיניים מור קליניק
עיר: חולון
שטח: כ 43 מ"ר
המרפאה ממוקמת בפסאג' בעיר חולון בשכונת בן גוריון
עיר: חולון
שטח: כ 43 מ"ר
המרפאה ממוקמת בפסאג' בעיר חולון בשכונת בן גוריון

מרפאת שיניים מור קליניק
עיר: חולון
שטח: כ 43 מ"ר
המרפאה ממוקמת בפסאג' בעיר חולון בשכונת בן גוריון
עיר: חולון
שטח: כ 43 מ"ר
המרפאה ממוקמת בפסאג' בעיר חולון בשכונת בן גוריון

מרפאת שיניים מור קליניק
עיר: חולון
שטח: כ 43 מ"ר
המרפאה ממוקמת בפסאג' בעיר חולון בשכונת בן גוריון
עיר: חולון
שטח: כ 43 מ"ר
המרפאה ממוקמת בפסאג' בעיר חולון בשכונת בן גוריון

מרפאת שיניים מור קליניק
עיר: חולון
שטח: כ 43 מ"ר
המרפאה ממוקמת בפסאג' בעיר חולון בשכונת בן גוריון
עיר: חולון
שטח: כ 43 מ"ר
המרפאה ממוקמת בפסאג' בעיר חולון בשכונת בן גוריון

מרפאת שיניים מור קליניק
עיר: חולון
שטח: כ 43 מ"ר
המרפאה ממוקמת בפסאג' בעיר חולון בשכונת בן גוריון
עיר: חולון
שטח: כ 43 מ"ר
המרפאה ממוקמת בפסאג' בעיר חולון בשכונת בן גוריון

מרפאת שיניים מור קליניק
עיר: חולון
שטח: כ 43 מ"ר
המרפאה ממוקמת בפסאג' בעיר חולון בשכונת בן גוריון
עיר: חולון
שטח: כ 43 מ"ר
המרפאה ממוקמת בפסאג' בעיר חולון בשכונת בן גוריון

מרפאת שיניים מור קליניק
עיר: חולון
שטח: כ 43 מ"ר
המרפאה ממוקמת בפסאג' בעיר חולון בשכונת בן גוריון
עיר: חולון
שטח: כ 43 מ"ר
המרפאה ממוקמת בפסאג' בעיר חולון בשכונת בן גוריון

מרפאת שיניים מור קליניק
עיר: חולון
שטח: כ 43 מ"ר
המרפאה ממוקמת בפסאג' בעיר חולון בשכונת בן גוריון
עיר: חולון
שטח: כ 43 מ"ר
המרפאה ממוקמת בפסאג' בעיר חולון בשכונת בן גוריון

תכנון לוגו למרפאה
מרפאת שיניים מור קליניק
עיר: חולון
שטח: כ 43 מ"ר
המרפאה ממוקמת בפסאג' בעיר חולון בשכונת בן גוריון
עיר: חולון
שטח: כ 43 מ"ר
המרפאה ממוקמת בפסאג' בעיר חולון בשכונת בן גוריון

מרפאת מור לפני השיפוץ
מרפאת שיניים מור קליניק
עיר: חולון
שטח: כ 43 מ"ר
המרפאה ממוקמת בפסאג' בעיר חולון בשכונת בן גוריון
עיר: חולון
שטח: כ 43 מ"ר
המרפאה ממוקמת בפסאג' בעיר חולון בשכונת בן גוריון

מרפאת מור לפני השיפוץ
מרפאת שיניים מור קליניק
עיר: חולון
שטח: כ 43 מ"ר
המרפאה ממוקמת בפסאג' בעיר חולון בשכונת בן גוריון
עיר: חולון
שטח: כ 43 מ"ר
המרפאה ממוקמת בפסאג' בעיר חולון בשכונת בן גוריון

מרפאת מור לפני השיפוץ
מרפאת שיניים מור קליניק
עיר: חולון
שטח: כ 43 מ"ר
המרפאה ממוקמת בפסאג' בעיר חולון בשכונת בן גוריון
עיר: חולון
שטח: כ 43 מ"ר
המרפאה ממוקמת בפסאג' בעיר חולון בשכונת בן גוריון

מרפאת מור לפני השיפוץ
מרפאת שיניים מור קליניק
עיר: חולון
שטח: כ 43 מ"ר
המרפאה ממוקמת בפסאג' בעיר חולון בשכונת בן גוריון
עיר: חולון
שטח: כ 43 מ"ר
המרפאה ממוקמת בפסאג' בעיר חולון בשכונת בן גוריון

Dor Fam Ashdod
דירת 4 חדרים
עיר: אשדוד
דיירים: זוג, בעל ואישה בשנות החמישים לחייהם
הדירה, דירת מגורים בבניין רב קומות ברובע יב' באשדוד
הדירה לפני תחילת השיפוץ הייתה מושכרת תקופה ארוכה
במצבה טרם השיפוץ הדירה הייתה חשוכה, עם מטבח קטן ומתוחם ללא כניסת אור טבעית, חדרי הרחצה היו קטנים ולא נוחים
האתגר שהוצב לפניי להפוך את הדירה לחלל מאוורר, גדול, עם מקומות אחסון רבים והחלום היה לשדר יוקרה וחדשנות, דירה שמיועדת לאירוח של משפחה ענפה וחברים רבים
בפועל אחרי תכנון של כ 4 חודשים מקדימים טרם תחילת השיפוץ הוחלט להחליף את כל המערכות של החשמל, אינסטלציה, מיזוג אוויר לחדשים, להוריד את הקירות המיותרים, להחליף את האלומיניום והדלתות של כלל הדירה, תכננו נגרויות מותאמות אישית לכלל חדרי הדירה, החומריות, הגוונים והתאורה שבחרנו לדירה היה במטרה לחזק את תחושת היוקרה אך לשמור על איפוק ועל סקלת החומרים הטבעיים שיתנו את החמימות לבית
עיר: אשדוד
דיירים: זוג, בעל ואישה בשנות החמישים לחייהם
הדירה, דירת מגורים בבניין רב קומות ברובע יב' באשדוד
הדירה לפני תחילת השיפוץ הייתה מושכרת תקופה ארוכה
במצבה טרם השיפוץ הדירה הייתה חשוכה, עם מטבח קטן ומתוחם ללא כניסת אור טבעית, חדרי הרחצה היו קטנים ולא נוחים
האתגר שהוצב לפניי להפוך את הדירה לחלל מאוורר, גדול, עם מקומות אחסון רבים והחלום היה לשדר יוקרה וחדשנות, דירה שמיועדת לאירוח של משפחה ענפה וחברים רבים
בפועל אחרי תכנון של כ 4 חודשים מקדימים טרם תחילת השיפוץ הוחלט להחליף את כל המערכות של החשמל, אינסטלציה, מיזוג אוויר לחדשים, להוריד את הקירות המיותרים, להחליף את האלומיניום והדלתות של כלל הדירה, תכננו נגרויות מותאמות אישית לכלל חדרי הדירה, החומריות, הגוונים והתאורה שבחרנו לדירה היה במטרה לחזק את תחושת היוקרה אך לשמור על איפוק ועל סקלת החומרים הטבעיים שיתנו את החמימות לבית










S&E Fam. House, Harish
דירת 5 חדרים
עיר: חריש
דיירים: זוג צעיר ו- 4 ילדים מקסימים שמעלים חיוך ענק על הפנים
הדירה, דירת מגורים בבניין בוטיק בעיר הצעירה, חריש
הדירה דירת קבלן מוכנה למגורים אך הדירה הייתה ללא נשמה כפי שהגדירה אותה בעלת הבית הנדירה שבחרה בי לפני שקנתה את הדירה. האישה הנפלאה שמצאה אותי והתעקשה שאלווה את תהליך עיצוב ביתה ידעה בדיוק רב מה שנשמתה חפצה בו ולי נותר רק להתמסר לה ולעזור לה לדייק את שרצתה וקיוותה בכל ליבה
האתגר שהוצב לפניי ליצור בית שמח, מלאה במקומות אחסון עבור כל בני הבית, ליצור במרחב קטן של מטבח מטבח כשר ובעיקר להיות יצירתית עם נגרויות מותאמות אישית וכמובן ליצור משרד ביתי בוטיק ולתכנן מרפסת חלומית והכל בתקציב מהודק למדי
בפועל לקחתי על עצמי את האתגר למרות המרחק, התכנון היה בעיקר של הוספת נקודות חשמל ותאורה, תכנון של הנמכות תקרה ומיזוג אוויר, תכנון מחודש של מטבח כחול!!!! והוספת אי הנכסף. תכננתי את כל הדירה בנגרות מותאמת אישית וכך מקסמתי את מקומות האחסון וארגון הבית כדאי לדאוג שגם עם 4 ילדים הבית יהיה תמיד מסודר ומאורגן ואני הרווחתי חברה נפלאה לחיים
עיר: חריש
דיירים: זוג צעיר ו- 4 ילדים מקסימים שמעלים חיוך ענק על הפנים
הדירה, דירת מגורים בבניין בוטיק בעיר הצעירה, חריש
הדירה דירת קבלן מוכנה למגורים אך הדירה הייתה ללא נשמה כפי שהגדירה אותה בעלת הבית הנדירה שבחרה בי לפני שקנתה את הדירה. האישה הנפלאה שמצאה אותי והתעקשה שאלווה את תהליך עיצוב ביתה ידעה בדיוק רב מה שנשמתה חפצה בו ולי נותר רק להתמסר לה ולעזור לה לדייק את שרצתה וקיוותה בכל ליבה
האתגר שהוצב לפניי ליצור בית שמח, מלאה במקומות אחסון עבור כל בני הבית, ליצור במרחב קטן של מטבח מטבח כשר ובעיקר להיות יצירתית עם נגרויות מותאמות אישית וכמובן ליצור משרד ביתי בוטיק ולתכנן מרפסת חלומית והכל בתקציב מהודק למדי
בפועל לקחתי על עצמי את האתגר למרות המרחק, התכנון היה בעיקר של הוספת נקודות חשמל ותאורה, תכנון של הנמכות תקרה ומיזוג אוויר, תכנון מחודש של מטבח כחול!!!! והוספת אי הנכסף. תכננתי את כל הדירה בנגרות מותאמת אישית וכך מקסמתי את מקומות האחסון וארגון הבית כדאי לדאוג שגם עם 4 ילדים הבית יהיה תמיד מסודר ומאורגן ואני הרווחתי חברה נפלאה לחיים

S&E Fam. House, Harish
דירת 5 חדרים
עיר: חריש
דיירים: זוג צעיר ו- 4 ילדים מקסימים שמעלים חיוך ענק על הפנים
הדירה, דירת מגורים בבניין בוטיק בעיר הצעירה, חריש
הדירה דירת קבלן מוכנה למגורים אך הדירה הייתה ללא נשמה כפי שהגדירה אותה בעלת הבית הנדירה שבחרה בי לפני שקנתה את הדירה. האישה הנפלאה שמצאה אותי והתעקשה שאלווה את תהליך עיצוב ביתה ידעה בדיוק רב מה שנשמתה חפצה בו ולי נותר רק להתמסר לה ולעזור לה לדייק את שרצתה וקיוותה בכל ליבה
האתגר שהוצב לפניי ליצור בית שמח, מלאה במקומות אחסון עבור כל בני הבית, ליצור במרחב קטן של מטבח מטבח כשר ובעיקר להיות יצירתית עם נגרויות מותאמות אישית וכמובן ליצור משרד ביתי בוטיק ולתכנן מרפסת חלומית והכל בתקציב מהודק למדי
בפועל לקחתי על עצמי את האתגר למרות המרחק, התכנון היה בעיקר של הוספת נקודות חשמל ותאורה, תכנון של הנמכות תקרה ומיזוג אוויר, תכנון מחודש של מטבח כחול!!!! והוספת אי הנכסף. תכננתי את כל הדירה בנגרות מותאמת אישית וכך מקסמתי את מקומות האחסון וארגון הבית כדאי לדאוג שגם עם 4 ילדים הבית יהיה תמיד מסודר ומאורגן ואני הרווחתי חברה נפלאה לחיים
עיר: חריש
דיירים: זוג צעיר ו- 4 ילדים מקסימים שמעלים חיוך ענק על הפנים
הדירה, דירת מגורים בבניין בוטיק בעיר הצעירה, חריש
הדירה דירת קבלן מוכנה למגורים אך הדירה הייתה ללא נשמה כפי שהגדירה אותה בעלת הבית הנדירה שבחרה בי לפני שקנתה את הדירה. האישה הנפלאה שמצאה אותי והתעקשה שאלווה את תהליך עיצוב ביתה ידעה בדיוק רב מה שנשמתה חפצה בו ולי נותר רק להתמסר לה ולעזור לה לדייק את שרצתה וקיוותה בכל ליבה
האתגר שהוצב לפניי ליצור בית שמח, מלאה במקומות אחסון עבור כל בני הבית, ליצור במרחב קטן של מטבח מטבח כשר ובעיקר להיות יצירתית עם נגרויות מותאמות אישית וכמובן ליצור משרד ביתי בוטיק ולתכנן מרפסת חלומית והכל בתקציב מהודק למדי
בפועל לקחתי על עצמי את האתגר למרות המרחק, התכנון היה בעיקר של הוספת נקודות חשמל ותאורה, תכנון של הנמכות תקרה ומיזוג אוויר, תכנון מחודש של מטבח כחול!!!! והוספת אי הנכסף. תכננתי את כל הדירה בנגרות מותאמת אישית וכך מקסמתי את מקומות האחסון וארגון הבית כדאי לדאוג שגם עם 4 ילדים הבית יהיה תמיד מסודר ומאורגן ואני הרווחתי חברה נפלאה לחיים

S&E Fam. House, Harish
דירת 5 חדרים
עיר: חריש
דיירים: זוג צעיר ו- 4 ילדים מקסימים שמעלים חיוך ענק על הפנים
הדירה, דירת מגורים בבניין בוטיק בעיר הצעירה, חריש
הדירה דירת קבלן מוכנה למגורים אך הדירה הייתה ללא נשמה כפי שהגדירה אותה בעלת הבית הנדירה שבחרה בי לפני שקנתה את הדירה. האישה הנפלאה שמצאה אותי והתעקשה שאלווה את תהליך עיצוב ביתה ידעה בדיוק רב מה שנשמתה חפצה בו ולי נותר רק להתמסר לה ולעזור לה לדייק את שרצתה וקיוותה בכל ליבה
האתגר שהוצב לפניי ליצור בית שמח, מלאה במקומות אחסון עבור כל בני הבית, ליצור במרחב קטן של מטבח מטבח כשר ובעיקר להיות יצירתית עם נגרויות מותאמות אישית וכמובן ליצור משרד ביתי בוטיק ולתכנן מרפסת חלומית והכל בתקציב מהודק למדי
בפועל לקחתי על עצמי את האתגר למרות המרחק, התכנון היה בעיקר של הוספת נקודות חשמל ותאורה, תכנון של הנמכות תקרה ומיזוג אוויר, תכנון מחודש של מטבח כחול!!!! והוספת אי הנכסף. תכננתי את כל הדירה בנגרות מותאמת אישית וכך מקסמתי את מקומות האחסון וארגון הבית כדאי לדאוג שגם עם 4 ילדים הבית יהיה תמיד מסודר ומאורגן ואני הרווחתי חברה נפלאה לחיים
עיר: חריש
דיירים: זוג צעיר ו- 4 ילדים מקסימים שמעלים חיוך ענק על הפנים
הדירה, דירת מגורים בבניין בוטיק בעיר הצעירה, חריש
הדירה דירת קבלן מוכנה למגורים אך הדירה הייתה ללא נשמה כפי שהגדירה אותה בעלת הבית הנדירה שבחרה בי לפני שקנתה את הדירה. האישה הנפלאה שמצאה אותי והתעקשה שאלווה את תהליך עיצוב ביתה ידעה בדיוק רב מה שנשמתה חפצה בו ולי נותר רק להתמסר לה ולעזור לה לדייק את שרצתה וקיוותה בכל ליבה
האתגר שהוצב לפניי ליצור בית שמח, מלאה במקומות אחסון עבור כל בני הבית, ליצור במרחב קטן של מטבח מטבח כשר ובעיקר להיות יצירתית עם נגרויות מותאמות אישית וכמובן ליצור משרד ביתי בוטיק ולתכנן מרפסת חלומית והכל בתקציב מהודק למדי
בפועל לקחתי על עצמי את האתגר למרות המרחק, התכנון היה בעיקר של הוספת נקודות חשמל ותאורה, תכנון של הנמכות תקרה ומיזוג אוויר, תכנון מחודש של מטבח כחול!!!! והוספת אי הנכסף. תכננתי את כל הדירה בנגרות מותאמת אישית וכך מקסמתי את מקומות האחסון וארגון הבית כדאי לדאוג שגם עם 4 ילדים הבית יהיה תמיד מסודר ומאורגן ואני הרווחתי חברה נפלאה לחיים

S&E Fam. House, Harish
דירת 5 חדרים
עיר: חריש
דיירים: זוג צעיר ו- 4 ילדים מקסימים שמעלים חיוך ענק על הפנים
הדירה, דירת מגורים בבניין בוטיק בעיר הצעירה, חריש
הדירה דירת קבלן מוכנה למגורים אך הדירה הייתה ללא נשמה כפי שהגדירה אותה בעלת הבית הנדירה שבחרה בי לפני שקנתה את הדירה. האישה הנפלאה שמצאה אותי והתעקשה שאלווה את תהליך עיצוב ביתה ידעה בדיוק רב מה שנשמתה חפצה בו ולי נותר רק להתמסר לה ולעזור לה לדייק את שרצתה וקיוותה בכל ליבה
האתגר שהוצב לפניי ליצור בית שמח, מלאה במקומות אחסון עבור כל בני הבית, ליצור במרחב קטן של מטבח מטבח כשר ובעיקר להיות יצירתית עם נגרויות מותאמות אישית וכמובן ליצור משרד ביתי בוטיק ולתכנן מרפסת חלומית והכל בתקציב מהודק למדי
בפועל לקחתי על עצמי את האתגר למרות המרחק, התכנון היה בעיקר של הוספת נקודות חשמל ותאורה, תכנון של הנמכות תקרה ומיזוג אוויר, תכנון מחודש של מטבח כחול!!!! והוספת אי הנכסף. תכננתי את כל הדירה בנגרות מותאמת אישית וכך מקסמתי את מקומות האחסון וארגון הבית כדאי לדאוג שגם עם 4 ילדים הבית יהיה תמיד מסודר ומאורגן ואני הרווחתי חברה נפלאה לחיים
עיר: חריש
דיירים: זוג צעיר ו- 4 ילדים מקסימים שמעלים חיוך ענק על הפנים
הדירה, דירת מגורים בבניין בוטיק בעיר הצעירה, חריש
הדירה דירת קבלן מוכנה למגורים אך הדירה הייתה ללא נשמה כפי שהגדירה אותה בעלת הבית הנדירה שבחרה בי לפני שקנתה את הדירה. האישה הנפלאה שמצאה אותי והתעקשה שאלווה את תהליך עיצוב ביתה ידעה בדיוק רב מה שנשמתה חפצה בו ולי נותר רק להתמסר לה ולעזור לה לדייק את שרצתה וקיוותה בכל ליבה
האתגר שהוצב לפניי ליצור בית שמח, מלאה במקומות אחסון עבור כל בני הבית, ליצור במרחב קטן של מטבח מטבח כשר ובעיקר להיות יצירתית עם נגרויות מותאמות אישית וכמובן ליצור משרד ביתי בוטיק ולתכנן מרפסת חלומית והכל בתקציב מהודק למדי
בפועל לקחתי על עצמי את האתגר למרות המרחק, התכנון היה בעיקר של הוספת נקודות חשמל ותאורה, תכנון של הנמכות תקרה ומיזוג אוויר, תכנון מחודש של מטבח כחול!!!! והוספת אי הנכסף. תכננתי את כל הדירה בנגרות מותאמת אישית וכך מקסמתי את מקומות האחסון וארגון הבית כדאי לדאוג שגם עם 4 ילדים הבית יהיה תמיד מסודר ומאורגן ואני הרווחתי חברה נפלאה לחיים

S&E Fam. House, Harish
דירת 5 חדרים
עיר: חריש
דיירים: זוג צעיר ו- 4 ילדים מקסימים שמעלים חיוך ענק על הפנים
הדירה, דירת מגורים בבניין בוטיק בעיר הצעירה, חריש
הדירה דירת קבלן מוכנה למגורים אך הדירה הייתה ללא נשמה כפי שהגדירה אותה בעלת הבית הנדירה שבחרה בי לפני שקנתה את הדירה. האישה הנפלאה שמצאה אותי והתעקשה שאלווה את תהליך עיצוב ביתה ידעה בדיוק רב מה שנשמתה חפצה בו ולי נותר רק להתמסר לה ולעזור לה לדייק את שרצתה וקיוותה בכל ליבה
האתגר שהוצב לפניי ליצור בית שמח, מלאה במקומות אחסון עבור כל בני הבית, ליצור במרחב קטן של מטבח מטבח כשר ובעיקר להיות יצירתית עם נגרויות מותאמות אישית וכמובן ליצור משרד ביתי בוטיק ולתכנן מרפסת חלומית והכל בתקציב מהודק למדי
בפועל לקחתי על עצמי את האתגר למרות המרחק, התכנון היה בעיקר של הוספת נקודות חשמל ותאורה, תכנון של הנמכות תקרה ומיזוג אוויר, תכנון מחודש של מטבח כחול!!!! והוספת אי הנכסף. תכננתי את כל הדירה בנגרות מותאמת אישית וכך מקסמתי את מקומות האחסון וארגון הבית כדאי לדאוג שגם עם 4 ילדים הבית יהיה תמיד מסודר ומאורגן ואני הרווחתי חברה נפלאה לחיים
עיר: חריש
דיירים: זוג צעיר ו- 4 ילדים מקסימים שמעלים חיוך ענק על הפנים
הדירה, דירת מגורים בבניין בוטיק בעיר הצעירה, חריש
הדירה דירת קבלן מוכנה למגורים אך הדירה הייתה ללא נשמה כפי שהגדירה אותה בעלת הבית הנדירה שבחרה בי לפני שקנתה את הדירה. האישה הנפלאה שמצאה אותי והתעקשה שאלווה את תהליך עיצוב ביתה ידעה בדיוק רב מה שנשמתה חפצה בו ולי נותר רק להתמסר לה ולעזור לה לדייק את שרצתה וקיוותה בכל ליבה
האתגר שהוצב לפניי ליצור בית שמח, מלאה במקומות אחסון עבור כל בני הבית, ליצור במרחב קטן של מטבח מטבח כשר ובעיקר להיות יצירתית עם נגרויות מותאמות אישית וכמובן ליצור משרד ביתי בוטיק ולתכנן מרפסת חלומית והכל בתקציב מהודק למדי
בפועל לקחתי על עצמי את האתגר למרות המרחק, התכנון היה בעיקר של הוספת נקודות חשמל ותאורה, תכנון של הנמכות תקרה ומיזוג אוויר, תכנון מחודש של מטבח כחול!!!! והוספת אי הנכסף. תכננתי את כל הדירה בנגרות מותאמת אישית וכך מקסמתי את מקומות האחסון וארגון הבית כדאי לדאוג שגם עם 4 ילדים הבית יהיה תמיד מסודר ומאורגן ואני הרווחתי חברה נפלאה לחיים

S&E Fam. House, Harish
דירת 5 חדרים
עיר: חריש
דיירים: זוג צעיר ו- 4 ילדים מקסימים שמעלים חיוך ענק על הפנים
הדירה, דירת מגורים בבניין בוטיק בעיר הצעירה, חריש
הדירה דירת קבלן מוכנה למגורים אך הדירה הייתה ללא נשמה כפי שהגדירה אותה בעלת הבית הנדירה שבחרה בי לפני שקנתה את הדירה. האישה הנפלאה שמצאה אותי והתעקשה שאלווה את תהליך עיצוב ביתה ידעה בדיוק רב מה שנשמתה חפצה בו ולי נותר רק להתמסר לה ולעזור לה לדייק את שרצתה וקיוותה בכל ליבה
האתגר שהוצב לפניי ליצור בית שמח, מלאה במקומות אחסון עבור כל בני הבית, ליצור במרחב קטן של מטבח מטבח כשר ובעיקר להיות יצירתית עם נגרויות מותאמות אישית וכמובן ליצור משרד ביתי בוטיק ולתכנן מרפסת חלומית והכל בתקציב מהודק למדי
בפועל לקחתי על עצמי את האתגר למרות המרחק, התכנון היה בעיקר של הוספת נקודות חשמל ותאורה, תכנון של הנמכות תקרה ומיזוג אוויר, תכנון מחודש של מטבח כחול!!!! והוספת אי הנכסף. תכננתי את כל הדירה בנגרות מותאמת אישית וכך מקסמתי את מקומות האחסון וארגון הבית כדאי לדאוג שגם עם 4 ילדים הבית יהיה תמיד מסודר ומאורגן ואני הרווחתי חברה נפלאה לחיים
עיר: חריש
דיירים: זוג צעיר ו- 4 ילדים מקסימים שמעלים חיוך ענק על הפנים
הדירה, דירת מגורים בבניין בוטיק בעיר הצעירה, חריש
הדירה דירת קבלן מוכנה למגורים אך הדירה הייתה ללא נשמה כפי שהגדירה אותה בעלת הבית הנדירה שבחרה בי לפני שקנתה את הדירה. האישה הנפלאה שמצאה אותי והתעקשה שאלווה את תהליך עיצוב ביתה ידעה בדיוק רב מה שנשמתה חפצה בו ולי נותר רק להתמסר לה ולעזור לה לדייק את שרצתה וקיוותה בכל ליבה
האתגר שהוצב לפניי ליצור בית שמח, מלאה במקומות אחסון עבור כל בני הבית, ליצור במרחב קטן של מטבח מטבח כשר ובעיקר להיות יצירתית עם נגרויות מותאמות אישית וכמובן ליצור משרד ביתי בוטיק ולתכנן מרפסת חלומית והכל בתקציב מהודק למדי
בפועל לקחתי על עצמי את האתגר למרות המרחק, התכנון היה בעיקר של הוספת נקודות חשמל ותאורה, תכנון של הנמכות תקרה ומיזוג אוויר, תכנון מחודש של מטבח כחול!!!! והוספת אי הנכסף. תכננתי את כל הדירה בנגרות מותאמת אישית וכך מקסמתי את מקומות האחסון וארגון הבית כדאי לדאוג שגם עם 4 ילדים הבית יהיה תמיד מסודר ומאורגן ואני הרווחתי חברה נפלאה לחיים

S&E Fam. House, Harish
דירת 5 חדרים
עיר: חריש
דיירים: זוג צעיר ו- 4 ילדים מקסימים שמעלים חיוך ענק על הפנים
הדירה, דירת מגורים בבניין בוטיק בעיר הצעירה, חריש
הדירה דירת קבלן מוכנה למגורים אך הדירה הייתה ללא נשמה כפי שהגדירה אותה בעלת הבית הנדירה שבחרה בי לפני שקנתה את הדירה. האישה הנפלאה שמצאה אותי והתעקשה שאלווה את תהליך עיצוב ביתה ידעה בדיוק רב מה שנשמתה חפצה בו ולי נותר רק להתמסר לה ולעזור לה לדייק את שרצתה וקיוותה בכל ליבה
האתגר שהוצב לפניי ליצור בית שמח, מלאה במקומות אחסון עבור כל בני הבית, ליצור במרחב קטן של מטבח מטבח כשר ובעיקר להיות יצירתית עם נגרויות מותאמות אישית וכמובן ליצור משרד ביתי בוטיק ולתכנן מרפסת חלומית והכל בתקציב מהודק למדי
בפועל לקחתי על עצמי את האתגר למרות המרחק, התכנון היה בעיקר של הוספת נקודות חשמל ותאורה, תכנון של הנמכות תקרה ומיזוג אוויר, תכנון מחודש של מטבח כחול!!!! והוספת אי הנכסף. תכננתי את כל הדירה בנגרות מותאמת אישית וכך מקסמתי את מקומות האחסון וארגון הבית כדאי לדאוג שגם עם 4 ילדים הבית יהיה תמיד מסודר ומאורגן ואני הרווחתי חברה נפלאה לחיים
עיר: חריש
דיירים: זוג צעיר ו- 4 ילדים מקסימים שמעלים חיוך ענק על הפנים
הדירה, דירת מגורים בבניין בוטיק בעיר הצעירה, חריש
הדירה דירת קבלן מוכנה למגורים אך הדירה הייתה ללא נשמה כפי שהגדירה אותה בעלת הבית הנדירה שבחרה בי לפני שקנתה את הדירה. האישה הנפלאה שמצאה אותי והתעקשה שאלווה את תהליך עיצוב ביתה ידעה בדיוק רב מה שנשמתה חפצה בו ולי נותר רק להתמסר לה ולעזור לה לדייק את שרצתה וקיוותה בכל ליבה
האתגר שהוצב לפניי ליצור בית שמח, מלאה במקומות אחסון עבור כל בני הבית, ליצור במרחב קטן של מטבח מטבח כשר ובעיקר להיות יצירתית עם נגרויות מותאמות אישית וכמובן ליצור משרד ביתי בוטיק ולתכנן מרפסת חלומית והכל בתקציב מהודק למדי
בפועל לקחתי על עצמי את האתגר למרות המרחק, התכנון היה בעיקר של הוספת נקודות חשמל ותאורה, תכנון של הנמכות תקרה ומיזוג אוויר, תכנון מחודש של מטבח כחול!!!! והוספת אי הנכסף. תכננתי את כל הדירה בנגרות מותאמת אישית וכך מקסמתי את מקומות האחסון וארגון הבית כדאי לדאוג שגם עם 4 ילדים הבית יהיה תמיד מסודר ומאורגן ואני הרווחתי חברה נפלאה לחיים

S&E Fam. House, Harish
דירת 5 חדרים
עיר: חריש
דיירים: זוג צעיר ו- 4 ילדים מקסימים שמעלים חיוך ענק על הפנים
הדירה, דירת מגורים בבניין בוטיק בעיר הצעירה, חריש
הדירה דירת קבלן מוכנה למגורים אך הדירה הייתה ללא נשמה כפי שהגדירה אותה בעלת הבית הנדירה שבחרה בי לפני שקנתה את הדירה. האישה הנפלאה שמצאה אותי והתעקשה שאלווה את תהליך עיצוב ביתה ידעה בדיוק רב מה שנשמתה חפצה בו ולי נותר רק להתמסר לה ולעזור לה לדייק את שרצתה וקיוותה בכל ליבה
האתגר שהוצב לפניי ליצור בית שמח, מלאה במקומות אחסון עבור כל בני הבית, ליצור במרחב קטן של מטבח מטבח כשר ובעיקר להיות יצירתית עם נגרויות מותאמות אישית וכמובן ליצור משרד ביתי בוטיק ולתכנן מרפסת חלומית והכל בתקציב מהודק למדי
בפועל לקחתי על עצמי את האתגר למרות המרחק, התכנון היה בעיקר של הוספת נקודות חשמל ותאורה, תכנון של הנמכות תקרה ומיזוג אוויר, תכנון מחודש של מטבח כחול!!!! והוספת אי הנכסף. תכננתי את כל הדירה בנגרות מותאמת אישית וכך מקסמתי את מקומות האחסון וארגון הבית כדאי לדאוג שגם עם 4 ילדים הבית יהיה תמיד מסודר ומאורגן ואני הרווחתי חברה נפלאה לחיים
עיר: חריש
דיירים: זוג צעיר ו- 4 ילדים מקסימים שמעלים חיוך ענק על הפנים
הדירה, דירת מגורים בבניין בוטיק בעיר הצעירה, חריש
הדירה דירת קבלן מוכנה למגורים אך הדירה הייתה ללא נשמה כפי שהגדירה אותה בעלת הבית הנדירה שבחרה בי לפני שקנתה את הדירה. האישה הנפלאה שמצאה אותי והתעקשה שאלווה את תהליך עיצוב ביתה ידעה בדיוק רב מה שנשמתה חפצה בו ולי נותר רק להתמסר לה ולעזור לה לדייק את שרצתה וקיוותה בכל ליבה
האתגר שהוצב לפניי ליצור בית שמח, מלאה במקומות אחסון עבור כל בני הבית, ליצור במרחב קטן של מטבח מטבח כשר ובעיקר להיות יצירתית עם נגרויות מותאמות אישית וכמובן ליצור משרד ביתי בוטיק ולתכנן מרפסת חלומית והכל בתקציב מהודק למדי
בפועל לקחתי על עצמי את האתגר למרות המרחק, התכנון היה בעיקר של הוספת נקודות חשמל ותאורה, תכנון של הנמכות תקרה ומיזוג אוויר, תכנון מחודש של מטבח כחול!!!! והוספת אי הנכסף. תכננתי את כל הדירה בנגרות מותאמת אישית וכך מקסמתי את מקומות האחסון וארגון הבית כדאי לדאוג שגם עם 4 ילדים הבית יהיה תמיד מסודר ומאורגן ואני הרווחתי חברה נפלאה לחיים

S&E Fam. House, Harish
דירת 5 חדרים
עיר: חריש
דיירים: זוג צעיר ו- 4 ילדים מקסימים שמעלים חיוך ענק על הפנים
הדירה, דירת מגורים בבניין בוטיק בעיר הצעירה, חריש
הדירה דירת קבלן מוכנה למגורים אך הדירה הייתה ללא נשמה כפי שהגדירה אותה בעלת הבית הנדירה שבחרה בי לפני שקנתה את הדירה. האישה הנפלאה שמצאה אותי והתעקשה שאלווה את תהליך עיצוב ביתה ידעה בדיוק רב מה שנשמתה חפצה בו ולי נותר רק להתמסר לה ולעזור לה לדייק את שרצתה וקיוותה בכל ליבה
האתגר שהוצב לפניי ליצור בית שמח, מלאה במקומות אחסון עבור כל בני הבית, ליצור במרחב קטן של מטבח מטבח כשר ובעיקר להיות יצירתית עם נגרויות מותאמות אישית וכמובן ליצור משרד ביתי בוטיק ולתכנן מרפסת חלומית והכל בתקציב מהודק למדי
בפועל לקחתי על עצמי את האתגר למרות המרחק, התכנון היה בעיקר של הוספת נקודות חשמל ותאורה, תכנון של הנמכות תקרה ומיזוג אוויר, תכנון מחודש של מטבח כחול!!!! והוספת אי הנכסף. תכננתי את כל הדירה בנגרות מותאמת אישית וכך מקסמתי את מקומות האחסון וארגון הבית כדאי לדאוג שגם עם 4 ילדים הבית יהיה תמיד מסודר ומאורגן ואני הרווחתי חברה נפלאה לחיים
עיר: חריש
דיירים: זוג צעיר ו- 4 ילדים מקסימים שמעלים חיוך ענק על הפנים
הדירה, דירת מגורים בבניין בוטיק בעיר הצעירה, חריש
הדירה דירת קבלן מוכנה למגורים אך הדירה הייתה ללא נשמה כפי שהגדירה אותה בעלת הבית הנדירה שבחרה בי לפני שקנתה את הדירה. האישה הנפלאה שמצאה אותי והתעקשה שאלווה את תהליך עיצוב ביתה ידעה בדיוק רב מה שנשמתה חפצה בו ולי נותר רק להתמסר לה ולעזור לה לדייק את שרצתה וקיוותה בכל ליבה
האתגר שהוצב לפניי ליצור בית שמח, מלאה במקומות אחסון עבור כל בני הבית, ליצור במרחב קטן של מטבח מטבח כשר ובעיקר להיות יצירתית עם נגרויות מותאמות אישית וכמובן ליצור משרד ביתי בוטיק ולתכנן מרפסת חלומית והכל בתקציב מהודק למדי
בפועל לקחתי על עצמי את האתגר למרות המרחק, התכנון היה בעיקר של הוספת נקודות חשמל ותאורה, תכנון של הנמכות תקרה ומיזוג אוויר, תכנון מחודש של מטבח כחול!!!! והוספת אי הנכסף. תכננתי את כל הדירה בנגרות מותאמת אישית וכך מקסמתי את מקומות האחסון וארגון הבית כדאי לדאוג שגם עם 4 ילדים הבית יהיה תמיד מסודר ומאורגן ואני הרווחתי חברה נפלאה לחיים

S&E Fam. House, Harish
דירת 5 חדרים
עיר: חריש
דיירים: זוג צעיר ו- 4 ילדים מקסימים שמעלים חיוך ענק על הפנים
הדירה, דירת מגורים בבניין בוטיק בעיר הצעירה, חריש
הדירה דירת קבלן מוכנה למגורים אך הדירה הייתה ללא נשמה כפי שהגדירה אותה בעלת הבית הנדירה שבחרה בי לפני שקנתה את הדירה. האישה הנפלאה שמצאה אותי והתעקשה שאלווה את תהליך עיצוב ביתה ידעה בדיוק רב מה שנשמתה חפצה בו ולי נותר רק להתמסר לה ולעזור לה לדייק את שרצתה וקיוותה בכל ליבה
האתגר שהוצב לפניי ליצור בית שמח, מלאה במקומות אחסון עבור כל בני הבית, ליצור במרחב קטן של מטבח מטבח כשר ובעיקר להיות יצירתית עם נגרויות מותאמות אישית וכמובן ליצור משרד ביתי בוטיק ולתכנן מרפסת חלומית והכל בתקציב מהודק למדי
בפועל לקחתי על עצמי את האתגר למרות המרחק, התכנון היה בעיקר של הוספת נקודות חשמל ותאורה, תכנון של הנמכות תקרה ומיזוג אוויר, תכנון מחודש של מטבח כחול!!!! והוספת אי הנכסף. תכננתי את כל הדירה בנגרות מותאמת אישית וכך מקסמתי את מקומות האחסון וארגון הבית כדאי לדאוג שגם עם 4 ילדים הבית יהיה תמיד מסודר ומאורגן ואני הרווחתי חברה נפלאה לחיים
עיר: חריש
דיירים: זוג צעיר ו- 4 ילדים מקסימים שמעלים חיוך ענק על הפנים
הדירה, דירת מגורים בבניין בוטיק בעיר הצעירה, חריש
הדירה דירת קבלן מוכנה למגורים אך הדירה הייתה ללא נשמה כפי שהגדירה אותה בעלת הבית הנדירה שבחרה בי לפני שקנתה את הדירה. האישה הנפלאה שמצאה אותי והתעקשה שאלווה את תהליך עיצוב ביתה ידעה בדיוק רב מה שנשמתה חפצה בו ולי נותר רק להתמסר לה ולעזור לה לדייק את שרצתה וקיוותה בכל ליבה
האתגר שהוצב לפניי ליצור בית שמח, מלאה במקומות אחסון עבור כל בני הבית, ליצור במרחב קטן של מטבח מטבח כשר ובעיקר להיות יצירתית עם נגרויות מותאמות אישית וכמובן ליצור משרד ביתי בוטיק ולתכנן מרפסת חלומית והכל בתקציב מהודק למדי
בפועל לקחתי על עצמי את האתגר למרות המרחק, התכנון היה בעיקר של הוספת נקודות חשמל ותאורה, תכנון של הנמכות תקרה ומיזוג אוויר, תכנון מחודש של מטבח כחול!!!! והוספת אי הנכסף. תכננתי את כל הדירה בנגרות מותאמת אישית וכך מקסמתי את מקומות האחסון וארגון הבית כדאי לדאוג שגם עם 4 ילדים הבית יהיה תמיד מסודר ומאורגן ואני הרווחתי חברה נפלאה לחיים

S&E Fam. House, Harish
דירת 5 חדרים
עיר: חריש
דיירים: זוג צעיר ו- 4 ילדים מקסימים שמעלים חיוך ענק על הפנים
הדירה, דירת מגורים בבניין בוטיק בעיר הצעירה, חריש
הדירה דירת קבלן מוכנה למגורים אך הדירה הייתה ללא נשמה כפי שהגדירה אותה בעלת הבית הנדירה שבחרה בי לפני שקנתה את הדירה. האישה הנפלאה שמצאה אותי והתעקשה שאלווה את תהליך עיצוב ביתה ידעה בדיוק רב מה שנשמתה חפצה בו ולי נותר רק להתמסר לה ולעזור לה לדייק את שרצתה וקיוותה בכל ליבה
האתגר שהוצב לפניי ליצור בית שמח, מלאה במקומות אחסון עבור כל בני הבית, ליצור במרחב קטן של מטבח מטבח כשר ובעיקר להיות יצירתית עם נגרויות מותאמות אישית וכמובן ליצור משרד ביתי בוטיק ולתכנן מרפסת חלומית והכל בתקציב מהודק למדי
בפועל לקחתי על עצמי את האתגר למרות המרחק, התכנון היה בעיקר של הוספת נקודות חשמל ותאורה, תכנון של הנמכות תקרה ומיזוג אוויר, תכנון מחודש של מטבח כחול!!!! והוספת אי הנכסף. תכננתי את כל הדירה בנגרות מותאמת אישית וכך מקסמתי את מקומות האחסון וארגון הבית כדאי לדאוג שגם עם 4 ילדים הבית יהיה תמיד מסודר ומאורגן ואני הרווחתי חברה נפלאה לחיים
עיר: חריש
דיירים: זוג צעיר ו- 4 ילדים מקסימים שמעלים חיוך ענק על הפנים
הדירה, דירת מגורים בבניין בוטיק בעיר הצעירה, חריש
הדירה דירת קבלן מוכנה למגורים אך הדירה הייתה ללא נשמה כפי שהגדירה אותה בעלת הבית הנדירה שבחרה בי לפני שקנתה את הדירה. האישה הנפלאה שמצאה אותי והתעקשה שאלווה את תהליך עיצוב ביתה ידעה בדיוק רב מה שנשמתה חפצה בו ולי נותר רק להתמסר לה ולעזור לה לדייק את שרצתה וקיוותה בכל ליבה
האתגר שהוצב לפניי ליצור בית שמח, מלאה במקומות אחסון עבור כל בני הבית, ליצור במרחב קטן של מטבח מטבח כשר ובעיקר להיות יצירתית עם נגרויות מותאמות אישית וכמובן ליצור משרד ביתי בוטיק ולתכנן מרפסת חלומית והכל בתקציב מהודק למדי
בפועל לקחתי על עצמי את האתגר למרות המרחק, התכנון היה בעיקר של הוספת נקודות חשמל ותאורה, תכנון של הנמכות תקרה ומיזוג אוויר, תכנון מחודש של מטבח כחול!!!! והוספת אי הנכסף. תכננתי את כל הדירה בנגרות מותאמת אישית וכך מקסמתי את מקומות האחסון וארגון הבית כדאי לדאוג שגם עם 4 ילדים הבית יהיה תמיד מסודר ומאורגן ואני הרווחתי חברה נפלאה לחיים

S&E Fam. House, Harish
דירת 5 חדרים
עיר: חריש
דיירים: זוג צעיר ו- 4 ילדים מקסימים שמעלים חיוך ענק על הפנים
הדירה, דירת מגורים בבניין בוטיק בעיר הצעירה, חריש
הדירה דירת קבלן מוכנה למגורים אך הדירה הייתה ללא נשמה כפי שהגדירה אותה בעלת הבית הנדירה שבחרה בי לפני שקנתה את הדירה. האישה הנפלאה שמצאה אותי והתעקשה שאלווה את תהליך עיצוב ביתה ידעה בדיוק רב מה שנשמתה חפצה בו ולי נותר רק להתמסר לה ולעזור לה לדייק את שרצתה וקיוותה בכל ליבה
האתגר שהוצב לפניי ליצור בית שמח, מלאה במקומות אחסון עבור כל בני הבית, ליצור במרחב קטן של מטבח מטבח כשר ובעיקר להיות יצירתית עם נגרויות מותאמות אישית וכמובן ליצור משרד ביתי בוטיק ולתכנן מרפסת חלומית והכל בתקציב מהודק למדי
בפועל לקחתי על עצמי את האתגר למרות המרחק, התכנון היה בעיקר של הוספת נקודות חשמל ותאורה, תכנון של הנמכות תקרה ומיזוג אוויר, תכנון מחודש של מטבח כחול!!!! והוספת אי הנכסף. תכננתי את כל הדירה בנגרות מותאמת אישית וכך מקסמתי את מקומות האחסון וארגון הבית כדאי לדאוג שגם עם 4 ילדים הבית יהיה תמיד מסודר ומאורגן ואני הרווחתי חברה נפלאה לחיים
עיר: חריש
דיירים: זוג צעיר ו- 4 ילדים מקסימים שמעלים חיוך ענק על הפנים
הדירה, דירת מגורים בבניין בוטיק בעיר הצעירה, חריש
הדירה דירת קבלן מוכנה למגורים אך הדירה הייתה ללא נשמה כפי שהגדירה אותה בעלת הבית הנדירה שבחרה בי לפני שקנתה את הדירה. האישה הנפלאה שמצאה אותי והתעקשה שאלווה את תהליך עיצוב ביתה ידעה בדיוק רב מה שנשמתה חפצה בו ולי נותר רק להתמסר לה ולעזור לה לדייק את שרצתה וקיוותה בכל ליבה
האתגר שהוצב לפניי ליצור בית שמח, מלאה במקומות אחסון עבור כל בני הבית, ליצור במרחב קטן של מטבח מטבח כשר ובעיקר להיות יצירתית עם נגרויות מותאמות אישית וכמובן ליצור משרד ביתי בוטיק ולתכנן מרפסת חלומית והכל בתקציב מהודק למדי
בפועל לקחתי על עצמי את האתגר למרות המרחק, התכנון היה בעיקר של הוספת נקודות חשמל ותאורה, תכנון של הנמכות תקרה ומיזוג אוויר, תכנון מחודש של מטבח כחול!!!! והוספת אי הנכסף. תכננתי את כל הדירה בנגרות מותאמת אישית וכך מקסמתי את מקומות האחסון וארגון הבית כדאי לדאוג שגם עם 4 ילדים הבית יהיה תמיד מסודר ומאורגן ואני הרווחתי חברה נפלאה לחיים

S&E Fam. House, Harish
דירת 5 חדרים
עיר: חריש
דיירים: זוג צעיר ו- 4 ילדים מקסימים שמעלים חיוך ענק על הפנים
הדירה, דירת מגורים בבניין בוטיק בעיר הצעירה, חריש
הדירה דירת קבלן מוכנה למגורים אך הדירה הייתה ללא נשמה כפי שהגדירה אותה בעלת הבית הנדירה שבחרה בי לפני שקנתה את הדירה. האישה הנפלאה שמצאה אותי והתעקשה שאלווה את תהליך עיצוב ביתה ידעה בדיוק רב מה שנשמתה חפצה בו ולי נותר רק להתמסר לה ולעזור לה לדייק את שרצתה וקיוותה בכל ליבה
האתגר שהוצב לפניי ליצור בית שמח, מלאה במקומות אחסון עבור כל בני הבית, ליצור במרחב קטן של מטבח מטבח כשר ובעיקר להיות יצירתית עם נגרויות מותאמות אישית וכמובן ליצור משרד ביתי בוטיק ולתכנן מרפסת חלומית והכל בתקציב מהודק למדי
בפועל לקחתי על עצמי את האתגר למרות המרחק, התכנון היה בעיקר של הוספת נקודות חשמל ותאורה, תכנון של הנמכות תקרה ומיזוג אוויר, תכנון מחודש של מטבח כחול!!!! והוספת אי הנכסף. תכננתי את כל הדירה בנגרות מותאמת אישית וכך מקסמתי את מקומות האחסון וארגון הבית כדאי לדאוג שגם עם 4 ילדים הבית יהיה תמיד מסודר ומאורגן ואני הרווחתי חברה נפלאה לחיים
עיר: חריש
דיירים: זוג צעיר ו- 4 ילדים מקסימים שמעלים חיוך ענק על הפנים
הדירה, דירת מגורים בבניין בוטיק בעיר הצעירה, חריש
הדירה דירת קבלן מוכנה למגורים אך הדירה הייתה ללא נשמה כפי שהגדירה אותה בעלת הבית הנדירה שבחרה בי לפני שקנתה את הדירה. האישה הנפלאה שמצאה אותי והתעקשה שאלווה את תהליך עיצוב ביתה ידעה בדיוק רב מה שנשמתה חפצה בו ולי נותר רק להתמסר לה ולעזור לה לדייק את שרצתה וקיוותה בכל ליבה
האתגר שהוצב לפניי ליצור בית שמח, מלאה במקומות אחסון עבור כל בני הבית, ליצור במרחב קטן של מטבח מטבח כשר ובעיקר להיות יצירתית עם נגרויות מותאמות אישית וכמובן ליצור משרד ביתי בוטיק ולתכנן מרפסת חלומית והכל בתקציב מהודק למדי
בפועל לקחתי על עצמי את האתגר למרות המרחק, התכנון היה בעיקר של הוספת נקודות חשמל ותאורה, תכנון של הנמכות תקרה ומיזוג אוויר, תכנון מחודש של מטבח כחול!!!! והוספת אי הנכסף. תכננתי את כל הדירה בנגרות מותאמת אישית וכך מקסמתי את מקומות האחסון וארגון הבית כדאי לדאוג שגם עם 4 ילדים הבית יהיה תמיד מסודר ומאורגן ואני הרווחתי חברה נפלאה לחיים

M&L Fam. Rishon Lezion
דירת 5 חדרים
עיר: ראשון לציון, שכונת כרמים
דיירים: זוג צעיר ו- 3 ילדים קטנטנים
הדירה, דירת מגורים בבניין רב קומות בשכונה נהדרת בעיר
כל פרוייקט שנכנס לסטודיו שלי הופך למין מיקרו סיפור חיים ששזור בחיים שלי
בפרויקט הזה למשל בעלת הדירה היא חברת ילדות שלי ואם הפרט הזה לא מספיק כדי לעלות את ממד הלחץ הנפשי שלי אז החברה המדוברת לקחה אותי כדי לתת לה חוות דעת האם לרכוש את הדירה טרם העסקה
וכך היה, הכשרתי את הרכישה של קניית הדירה. חודשים ארוכים השקעתי בתכנון של כל פרט בדירה, כולל כל הנגרויות והתשתיות והכל בכדי למזער לאפס את הטעויות בשטח בזמן הביצוע שהוא קריטי להצלחה של כל פרויקט. במסגרת התכנון החלטנו שאנחנו שוברים קירות, מרחיבים את חדרי הרחצה בדירה, החלטנו שנחליף את כל מערכות החשמל, האינסטלציה, מיזוג אוויר חיפויים ובעצם ה כ ל!!!! ואט אט התחבר לי שאת כל התכנון הגרנדיוזי הזה אני צריכה להוציא לפועל תוך חודש בודד בלבד
ומה חשבתם שקרה? מה שצריך לקרות התכנון יצא לפועל בעזרת הקבלנים ובעלי המקצוע המוכשרים שאני עובדת איתם והוצאנו לפועל בית שלם כנגד כל הסיכויים כולל נגרות מותאמת של כלל הבית בתוך חודש אחד בלבד
ושוב הפכנו משפחה מאוווווד אהובה ויקרה למאושרת שמתגוררת בדירה שמגשימה להם את כל שחלמו עליו
עיר: ראשון לציון, שכונת כרמים
דיירים: זוג צעיר ו- 3 ילדים קטנטנים
הדירה, דירת מגורים בבניין רב קומות בשכונה נהדרת בעיר
כל פרוייקט שנכנס לסטודיו שלי הופך למין מיקרו סיפור חיים ששזור בחיים שלי
בפרויקט הזה למשל בעלת הדירה היא חברת ילדות שלי ואם הפרט הזה לא מספיק כדי לעלות את ממד הלחץ הנפשי שלי אז החברה המדוברת לקחה אותי כדי לתת לה חוות דעת האם לרכוש את הדירה טרם העסקה
וכך היה, הכשרתי את הרכישה של קניית הדירה. חודשים ארוכים השקעתי בתכנון של כל פרט בדירה, כולל כל הנגרויות והתשתיות והכל בכדי למזער לאפס את הטעויות בשטח בזמן הביצוע שהוא קריטי להצלחה של כל פרויקט. במסגרת התכנון החלטנו שאנחנו שוברים קירות, מרחיבים את חדרי הרחצה בדירה, החלטנו שנחליף את כל מערכות החשמל, האינסטלציה, מיזוג אוויר חיפויים ובעצם ה כ ל!!!! ואט אט התחבר לי שאת כל התכנון הגרנדיוזי הזה אני צריכה להוציא לפועל תוך חודש בודד בלבד
ומה חשבתם שקרה? מה שצריך לקרות התכנון יצא לפועל בעזרת הקבלנים ובעלי המקצוע המוכשרים שאני עובדת איתם והוצאנו לפועל בית שלם כנגד כל הסיכויים כולל נגרות מותאמת של כלל הבית בתוך חודש אחד בלבד
ושוב הפכנו משפחה מאוווווד אהובה ויקרה למאושרת שמתגוררת בדירה שמגשימה להם את כל שחלמו עליו

M&L Fam. Rishon Lezion

M&L Fam. Rishon Lezion

M&L Fam. Rishon Lezion

M&L Fam. Rishon Lezion

M&L Fam. Rishon Lezion

M&L Fam. Rishon Lezion

M&L Fam. Rishon Lezion




M&L Fam. Rishon Lezion
bottom of page
